Die Wohnanlage
Die überschaubare Terrassen-Wohnanlage wurde im Jahr 1971 in einer wertbeständigen Massivbauweise erbaut und besteht aus insgesamt 10 Wohnungen auf 3 Stockwerke verteilt.
Das Wohnhaus verfügt im Untergeschoss über gemeinschaftliche Räumlichkeiten wie z.B. einen Wasch- und Trockenraum und einen Fahrradabstellraum.
Das gesamte Gebäude befindet sich in einem gepflegten und dem Alter entsprechenden ordnungsgemäßen Zustand.
Die Wohnung
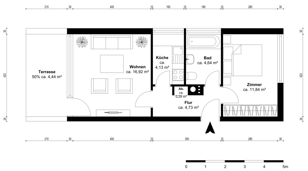
Diese attraktive 2-Zimmer-Wohnung im 1. Obergeschoss überzeugt durch einen durchdachten Grundriss. Besonders hervorzuheben ist die ca. 9 m² große und überdachte Terrasse, die nach Südwesten ausgerichtet ist und somit ideale Sonnenverhältnisse bietet.
Der großzügige Wohnbereich mit direktem Zugang zur Terrasse bildet das Herzstück der Wohnung und lädt zum Entspannen und Wohlfühlen ein. Darüber hinaus bietet die Wohnung einen Eingangsbereich mit einer praktischen kleinen Abstellnische, ein Tageslichtbadezimmer mit Badewanne, eine Küche und ein geräumiges Schlafzimmer.
Die Wohnung ist derzeit leerstehend und befindet sich einem gepflegten aber teilrenovierungsbedürftigen Zustand. Somit haben Sie die Möglichkeit, sich bei der Innengestaltung noch frei zu entfalten und diese Ihren Wünschen anzupassen.
Der Wohnung ist des Weiteren ein abschließbares Kellerabteil zugeordnet.
Germering, eine junge und lebendige Stadt mit langer Geschichte
Germering liegt im Landkreis Fürstenfeldbruck und zählt zu den gefragtesten Wohnlagen im Münchner Umland. Die Stadt vereint eine hervorragende Infrastruktur mit einem hohen Freizeit- und Erholungswert und bietet eine ideale Kombination aus urbanem Leben und naturnahem Wohnen.
Verkehrsanbindung und Infrastruktur
Dank der ausgezeichneten Verkehrsanbindung ist Germering ein attraktiver Wohnort für Pendler. Die Stadt verfügt über zwei S-Bahn-Stationen (Germering-Unterpfaffenhofen und Harthaus), die eine schnelle Anbindung an München ermöglichen – in ca. 20 Minuten erreicht man den Münchner Hauptbahnhof. Die nahegelegene A96 und A99 sorgen für eine gute Erreichbarkeit mit dem Auto. Zudem gibt es ein gut ausgebautes Busnetz innerhalb der Stadt und in die umliegenden Gemeinden.
Einkaufsmöglichkeiten und Versorgung
In Germering finden sich zahlreiche Einkaufsmöglichkeiten für den täglichen Bedarf, darunter Supermärkte, Bäckereien, Metzgereien und Apotheken. Das Einkaufszentrum Germeringer Einkaufs-Passagen (GEP) bietet neben Geschäften für Mode, Technik und Drogerieprodukte auch eine Vielzahl an Restaurants und Cafés. Zudem sind diverse Wochenmärkte mit frischen regionalen Produkten regelmäßig in der Stadt vertreten.
Bildung und Betreuung
Für Familien mit Kindern bietet Germering eine sehr gute Auswahl an Bildungseinrichtungen. Es gibt mehrere Kindergärten, Grundschulen sowie weiterführende Schulen wie die Realschule und das Carl-Spitzweg-Gymnasium. Zusätzlich stehen Musik- und Volkshochschulen für Weiterbildungsmöglichkeiten zur Verfügung.
Freizeit und Erholung
Die Stadt bietet ein breites Spektrum an Freizeitaktivitäten. Das Germeringer Hallenbad mit Sauna sowie das Freibad laden zum Entspannen und Schwimmen ein. Sportbegeisterte kommen auf den zahlreichen Sportanlagen, Tennisplätzen und Fitnessstudios auf ihre Kosten. Kulturell Interessierte finden in der Stadthalle Germering ein abwechslungsreiches Programm aus Theater, Konzerten und Kabarett. Zudem gibt es zahlreiche Vereine, die ein aktives Vereinsleben in den Bereichen Sport, Musik und Kultur bieten.
Natur und Naherholung
Trotz der Nähe zu München bietet Germering viele Möglichkeiten zur Erholung in der Natur. Der Germeringer See ist ein beliebtes Ziel für Spaziergänger, Jogger und Radfahrer. Die umliegenden Wälder und Wiesen laden zu ausgedehnten Wanderungen und Radtouren ein. Auch der nahegelegene Ammersee sowie das Fünfseenland sind schnell erreichbar und bieten zahlreiche Freizeitmöglichkeiten.
Adresse
82110 Germering
Die vollständige Adresse der
Immobilie erhalten Sie auf Anfrage.
Ansprechpartner
Stephan Ritter
Tel.: 089 444 55 66 - 11
Fax.: 089 444 55 66 - 10
Hubertusplatz 1
82041 Deisenhofen
