Die Einheit ist derzeit bis zum 14.04.2024 befristet vermietet. Der Mietvertrag verlängert sich jeweils um 24 Monate, sollte keine Kündigung ausgesprochen werden. Bitte beachten Sie, dass die Exposé-Bilder vor dem Einzug des Mieters aufgenommen wurden.
Bei diesem Objekt handelt es sich um ein neues individuelles und hochwertiges Wohn- und Geschäftsgebäude im Ortskern von Deisenhofen (Gemeinde Oberhaching), welches 2014 erbaut wurde.
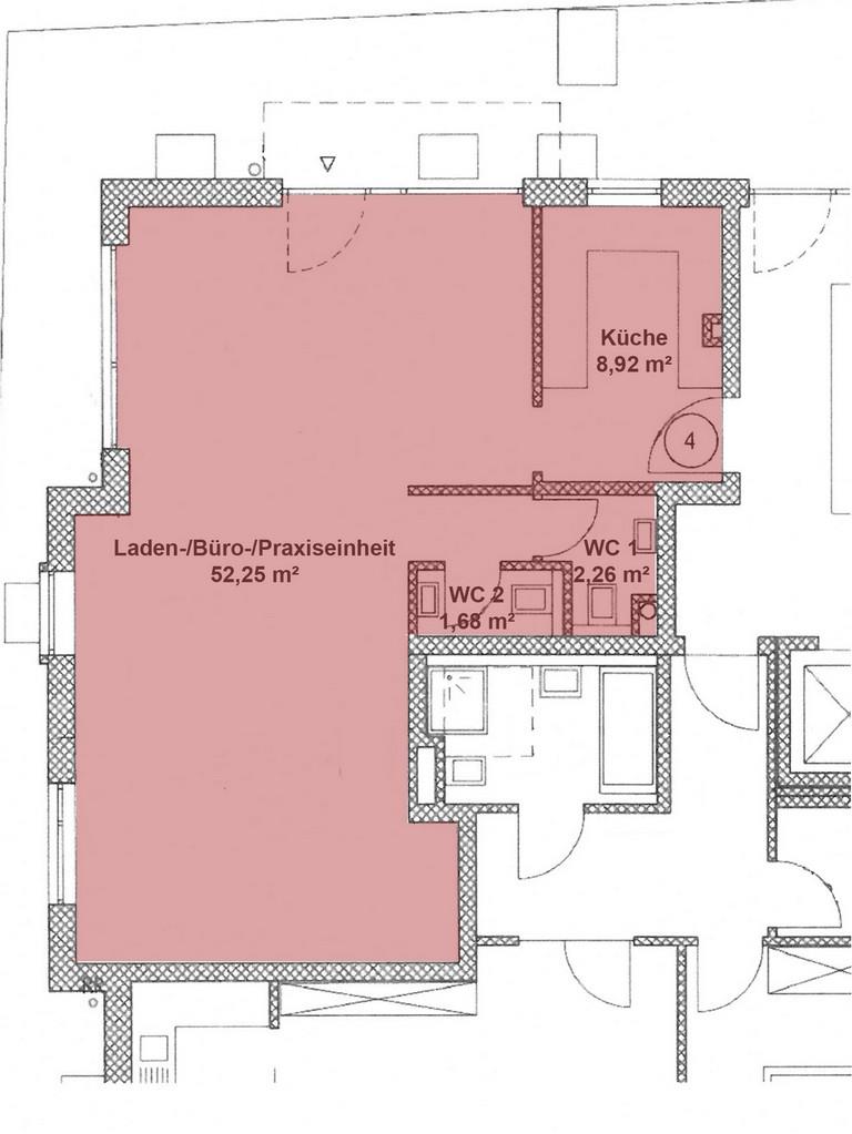
Die Einheit liegt im Erdgeschoss, verfügt über ein langen lichtdurchfluteten Raum und umfasst 65,11 m². Die großen Fensterflächen im Eingangsbereich bieten Ihnen die ideale Möglichkeit Ihre Produkte, Waren oder auch Dienstleistungen bestens zu repräsentieren.
Eine voll ausgestattete Küche und zwei Toilettenräume mit Waschbecken sind ebenso vorhanden.
Die Einheit ist mit einem hochwertigen Holzoptik-Fliesen-Bodenbelag ausgestattet. Beheizt wird die komplette Gewerbeeinheit über eine Fußbodenheizung. Die Höhe bis zur abgehängte Decke beträgt 2,66 m.
Dieser Einheit ist ein ca. 10 m² großes gemauertes Kellerabteil zugeordnet, welches mit einem Aufzug ohne Probleme erreicht werden kann.
Rund um die Gewerbeeinheit befindet sich eine große Anzahl öffentlicher Parkplätze. Zur Einheit werden zwei TG-Stellplätze zur Anmietung mit angeboten, welche über einen Stromanschluss verfügen.
- Zentrale Lage
- Fußläufig zur S-Bahnstation Deisenhofen
- Geschäfte des täglichen Bedarfs in unmittelbarer Nähe
- Anschluss an das örtliche Glasfaser- und Geothermienetz
- Schaufenster mit 3-facher Isolierverglasung
- Holzoptik-Fliesen-Bodenbelag
- Zwei Bodentanks mit kompletter EDV-Verkabelung
- Abgehängte Decke mit Verkabelung z.B. für die Installation eines Beamers
- Höhe bis zur abgehängten Decke: 2,66 m
- Flexibler Grundriss
- Zwei Toiletten
- Voll ausgestattete Küche
- Fußbodenheizung
- Fahrstuhl in das Untergeschoss
- Gemauertes Kellerabteil
- Große Anzahl öffentlicher Parkplätze direkt vor der Einheit
- 2 TG-Stellplätze mit Stromanschluss (Umwandlung zu Dreiphasenwechselstrom möglich)
Oberhaching, südlich von München gelegen, verfügt über eine komplette Infrastruktur.
Von Oberhaching zur Münchner Innenstadt benötigen Sie ca. 20 Minuten. Mit Deisenhofen und Furth stehen Ihnen gleich zwei S-Bahn-Stationen in Oberhaching zur Verfügung (S3).
Weiterhin hält in Deisenhofen der Meridian (direkte Verbindung mit Rosenheim; hält auch in Holzkirchen, Kreuzstraße, Westerham, Bruckmühl, Heufeldmühle, Heufeld, Bad Aibling, Bad Aibling Kurpark und Kolbermoor. Fahrten zum Münchner Hauptbahnhof u.a. über Solln und Harras werden mit dem Meridian während den Hauptverkehrszeiten ca. zweimal pro Stunde angeboten).
Die Buslinien 222, 224, 381 und 227 verbinden Deisenhofen zusätzlich auch noch mit weiteren Orten wie z.B. Neuperlach Süd, Grünwald, Höllrieglskreuth, Dietramszell und Geretsried. (weitere Informationen sowie Fahrpläne finden Sie unter www.oberhaching.de)
Der Autobahnanschluss zur A995 ist über die Münchner Straße in 5 Minuten leicht zu erreichen.
Mit einem Gewerbesteuerhebesatz von 250% liegt Oberhaching in einem attraktiven Bereich und lockt somit eine Vielzahl erfolgreicher Unternehmen an.
Auch zahlreiche Einzelhandelsgeschäfte und Boutiquen befinden sich in Deisenhofen und ziehen damit ebenso viele Käufer an.
Zusätzlich zu dem bereits positiven Gesamtbild profitieren Unternehmen und Haushalte in Deisenhofen von der Anbindung an das Glasfaser– und Geothermienetz.
Zum Mittagstisch bietet Deisenhofen / Oberhaching zahlreiche Lokalitäten für jeden Geschmack und jede Preisklasse. Im Gewerbegebiet befindet sich auch noch eine gehobene Kantine, die für jeden zugänglich ist (Tafelgold).
Adresse
82041 Deisenhofen
Die vollständige Adresse der
Immobilie erhalten Sie auf Anfrage.
Ansprechpartner
Maximilian Ritter
Tel.: 089 444 55 66 - 13
Fax.: 089 444 55 66 - 10
Hubertusplatz 1
82041 Deisenhofen
