Das an einem Hang gelegene Grundstück befindet sich in einer sehr zentralen und privilegierten Lage von Oberhaching. Die Nachbarschaft ist geprägt von vielen Grünflächen (Gleißental) und von Mehrfamilien-, Einfamilien- sowie Doppelhäusern.
Das Grundstück ist voll erschlossen. Der ehemals vorhandene Altbestand wurde von den Verkäufern bereits abgerissen, die Baugenehmigung für ein Einfamilienhaus liegt vor und die Baugrube wurde teilweise bereits ausgehoben.
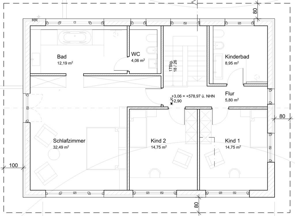
Weitere Informationen zu dem genehmigten Bauantrag finden Sie auf der nächsten Seite sowie auf den Seiten 7 bis 9. Hier ist der genehmigte Bauantrag für die Errichtung eines Einfamilienhauses abgebildet.
Der Baukörper des EFH umfasst eine Grundfläche von ca. 9,25 m x 12,99 m mit 2 Vollgeschossen, einem raumhaltigen Dach und einem Untergeschoss / Souterrain, das durch die Hanglage zur Hälfte normal belichtet ist. Aufgrund dieser Maßangaben kann eine reine Wohnfläche von ca. 250 m² zzgl. Terrasse und einem eventuellen Ausbau einer Galerie realisiert werden.
Genehmigt wurde ferner eine am Gebäude angeschlossene Doppelgarage und ein Carport unter der Süd-Terrasse.
Das Grundstück selber weist eine Hanglage auf. Das Niveau fällt von der östlichen zur westlichen Grundstücksgrenze um ca. 4 m.
Auf dem Grundstück befindet sich ferner eine einmalige alte Eiche, die in der Liste der Naturdenkmäler im Landkreis München eingetragen ist.
Das Grundstück ist an die öffentlich Ver- und Entsorgung angeschlossen. Wasser, Abwasser, Strom, Fernwärme und Glasfaser liegen am Grundstück an.
Im Kaufpreis ist der genehmigte Bauantrag bereits enthalten.
- Baukörpergröße laut Baugenehmigung:
- Grundfläche: 12,99 m x 9,25 m
- zzgl. Garage im UG: 6,90 m x 7,73 m
- 2 Vollgeschosse mit raumhaltigen Dachgeschoss und Untergeschoss / Souterrain
- reine Wohnfläche im EG, OG und teilweise Souterrain: ca. 250 m²
- zzgl. Nutzfläche: ca. 80 m² inkl. Garage
Die eigenständige Gemeinde Oberhaching erfreut sich insbesondere bei Familien, Sport- und Naturliebhabern äußerster Beliebtheit.
Eingebettet in üppiges Grün erstreckt sich die Gemeinde entlang des Perlacher/Grünwalder- und Deisenhofener Forsts und dem landschaftlich einzigartigen Isartal im Westen. Modernes Landleben in einer familienorientierten, traditionellen Atmosphäre mit einer hervorragenden Infrastruktur zur Münchner Innenstadt (ca. 15 km) macht Oberhaching zu einer der Spitzenlagen im Münchner Süden.
In Oberhaching/Deisenhofen sind jegliche Schulformen vorhanden, welche alle in Fuß- und Fahrradnähe zu erreichen sind. Seien es zahlreiche KiTas und Kindergärten, zwei Grundschulen, eine in naher Zukunft neu erbaute Realschule und FOS wie auch das Oberhachinger Gymnasium mit sprachlichem sowie naturwissenschaftlich-technologischem Zweig. Für die Schüler der Munich International School oder der Pater-Rupert-Meier-Schulen verkehren Schulbusse.
Alle Geschäfte des täglichen Bedarfs, kleine Cafés und feine Restaurants findet man hier neben dem Feinkostladen Kraut & Rüben oder anderen ortsüblichen Einzelhandelsgeschäften. Eine ausgezeichnete medizinische Versorgung durch Ärzte, Zahnärzte und Apotheken tragen zur hohen Lebensqualität von Oberhaching bei.
Freizeit- und Erholung? Suchen Sie sich etwas aus!
Beinahe unendlich sind die Fahrrad- und Wanderwege. Das aus natürlichen Quellen gespeiste Further-Naturbad bietet im Sommer die passende Erfrischung. Der beliebte Deininger Weiher lädt zum Baden ein und das nahe Isartal zu langen Spaziergängen.
Der Grünwalder Forst bietet mit dem Walderlebniszentrum Adrenalin im Kletterpark. Reiten in den umliegenden kleinen Dörfern, Fußball, Tennis- und Squashclubs sowie die Golf Range Brunnthal und der Münchener Golf Club in Straßlach werden im nahen Umkreis angeboten.
Auch für Wochenend-Ausflüge in die Berge oder zu den umliegenden Seen ist Oberhaching mit der Anbindung an die A8/A995 der ideale Ausgangspunkt.
Sei es ein Ausflug an den Chiemsee, Tegernsee, Schliersee, Starnberger See oder Ammersee – Sie haben die Qual der Wahl.
Die S-Bahn-Haltestelle Deisenhofen (S3 Holzkirchen-Mammendorf) verbindet den Ort mit München und dem Umland. Weiterhin hält in Deisenhofen die Regionalbahn RB58 (direkte Verbindung mit Rosenheim; hält auch in Holzkirchen, Kreuzstraße, Westerham, Bruckmühl, Heufeldmühle, Heufeld, Bad Aibling, Bad Aibling Kurpark und Kolbermoor. Fahrten zum Münchner Hauptbahnhof u.a. über Solln und Harras werden mit der RB58 während den Hauptverkehrszeiten ca. zweimal pro Stunde angeboten).
Diverse Buslinien verbinden Deisenhofen mit umliegenden Orten wie z.B. Neuperlach Süd, Grünwald, Höllriegelskreuth, Dietramszell, Geretsried, Sauerlach, Putzbrunn, Haar, Heimstetten, Endlhausen und Wolfratshausen.
Adresse
82041 Deisenhofen
Die vollständige Adresse der
Immobilie erhalten Sie auf Anfrage.
Ansprechpartner
Stephan Ritter
Tel.: 089 444 55 66 - 11
Fax.: 089 444 55 66 - 10
Hubertusplatz 1
82041 Deisenhofen
