DAS GRUNDSTÜCK
– ruhige Lage in einer verkehrsberuhigten Anliegerstraße
– ca. 500 m zum Ortszentrum und S-Bahnstation
– ebenes Grundstück Grundstücksgrößen von 164 bis 564 qm
– Schule und Kindergarten sind auf sicherem Wege zu erreichen
– großzügige und überlegte Freiflächengestaltung
18 Tiefgaragenstellplätze und 3 Stellplätze an der Wörnbrunnerstraße
DIE HÄUSER
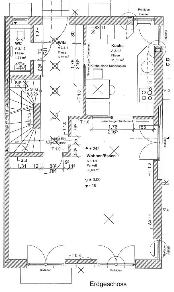
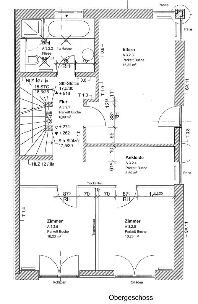
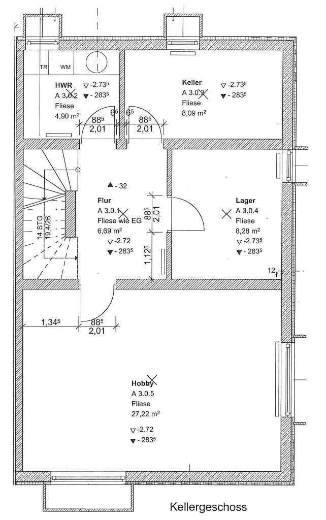
Einmal drei Reihenhäuser und einmal vier Reihenhäuser und ein großes Doppelhaus (Variante 1) bilden einen offenen Hof mit Wegen, Gärten, Vorgärten und Fahrradschuppen – Die modernen und hochwertigen Häuser werden weitgehendst mit ökologischem Baumaterial errichtet, nach der neuen EnEV (Energie Einsparungsverordnung) – Überzeugende Architektur. Lichtdurchflutete Räume (Fensterflächen raumhoch) und großzügige Grundrissgestaltung (individuelle Grundrissgestaltung noch möglich) – 108 qm bis 225 qm reine Wohnfläche, die wärmegedämmten Kellerräume bieten zusätzlich 41 bis 85 qm Nutzfläche. Heizungsanlage: Versorgung aus gemeinsamer Technikzentrale, Ausstattung mit moderner Gasbrennwert-technik, unterstützt durch eine thermische Solaranlage.
Keramikfliesen im KG und EG (alternativ auch Holzparkett im EG), Holzparkett im OG, Velourteppichböden im DG.
Fertigstellung: Anfang 2006
Die angegebenen Eckdaten sind Musterbeispiele des Reiheneckhauses A3.
Für weitere Details beachten Sie bitte die ausführliche Baubeschreibung
- Projektdetails:
- Gebäudetyp: Wohngebäude (DH, Dreispänner, Vierspänner) 9 Einheiten
- Tragwerkkonstruktion: Massivbauweise
- Dachkonstruktion: Satteldach
- Material Tragwerk: Stahlbeton
- Material Dach: Zimmermannsmäßiger Holzdachstuhl, Isofloc, Holzfaserdämmplatte, Ziegeldeckung Naturrot
- Material Innenausbau: Vollholzfenster, Vollholzparkett, Feinsteinzeug
- Besonderheiten: vollunterkellert, optimale Raumaufteilung, gemeinschaftliche Heizungsanlage, vorbereitet für Fernwärme, gemeinschaftliche Tiefgarage zwischen den Häusern
- Heizung: Zentrale Gasbrennwerttechnik (unterstützt durch thermische Solaranlage), Fußbodenheizung in Bädern und Wohnräumen, Heizkörper in Schlafzimmern
- Kennzeichen: Ökologisches Baumaterial, überzeugende Architektur, Energie- und solartechnische Aspekte
- Doppelhaus: Grundstück 528 m² – 565 m² Wohnfläche 225 m²
- Dreispänner: Grundstück 202 m² – 287 m² Wohnfläche 147 m²
- Vierspänner: Grundstück 170 m² – 373 m² Wohnfläche 108 m² – 148 m²
- Ort: Deisenhofen bei München
- Baujahr: 2005/2006
- Architekt: Dipl.- Ing. Wolfgang Jammernegg
- Bauherr: Ritter Bauträger & Immobilien GmbH
Deisenhofen, südlich von München gelegen, verfügt über eine komplette Infrastruktur. Alle Einkaufsmöglichkeiten befinden sich im Ort. Die Kindergärten, die Grundschule, die Hauptschule sowie das Gymnasium sind gut erreichbar.
Von Oberhaching zur Münchner Innenstadt benötigen Sie ca. 25 Minuten. Mit Deisenhofen und Furth stehen Ihnen gleich zwei S-Bahnstationen in Oberhaching zur Auswahl. Der Autobahnanschluss zur A99 ist in 5. Min. zu erreichen.
Das herrliche wald- und wiesenreiche Umland werden Sie sehr rasch kennen– und liebenlernen: ein wahres Erholungs- und Freizeitgebiet für Wanderer und Jogger, Radler, Reiter und Naturliebhaber. Mit dem Chiemsee, Starnbergersee und Tegernsee, dem landschaftlich einzigartigen Isartal im Westen und der Alpenkulisse im Süden kann es für Sie ein schöner Heimatort werden.
Adresse
Wörnbrunnerstr.
82041 Oberhaching
Die vollständige Adresse der
Immobilie erhalten Sie auf Anfrage.
Ansprechpartner
Stephan Ritter
Tel.: 089 444 55 66 - 11
Fax.: 089 444 55 66 - 10
Hubertusplatz 1
82041 Deisenhofen
