Die hier exklusiv angebotene Immobilie befindet sich in einem 1999 erbauten Wohnensemble von Doppel– und Reihenhäusern, eingebettet in einer sicheren Spielstraße und ruhigen Umgebung.
Das real geteilte Grundstück mit 275 m² Grund richtet sich optimal in Richtung Süd-Westen. Zum Grundstück gehört zudem 1/2 Miteigentumsanteil des angrenzenden Pfads und 1/7 Miteigentumsanteil des Müllhauses.
Mit einem durchdachten Raumkonzept erstreckt sich das großzügige Eckhaus über insgesamt 3 Geschosse (EG,OG,DG) und ist zudem vollunterkellert.
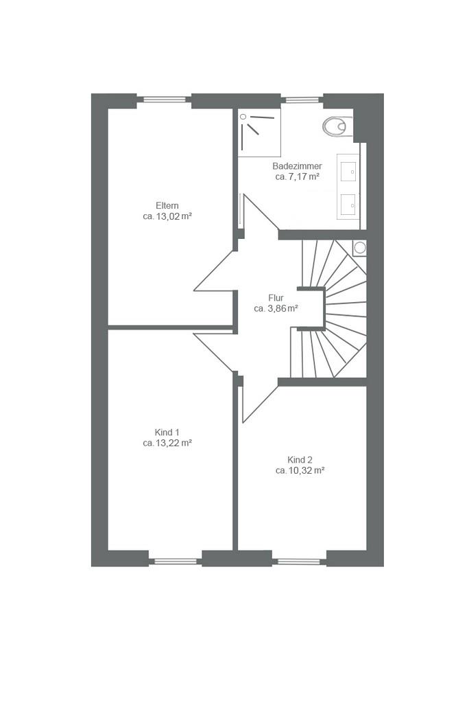
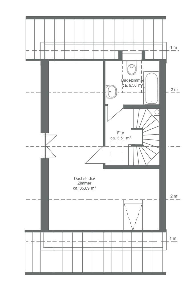
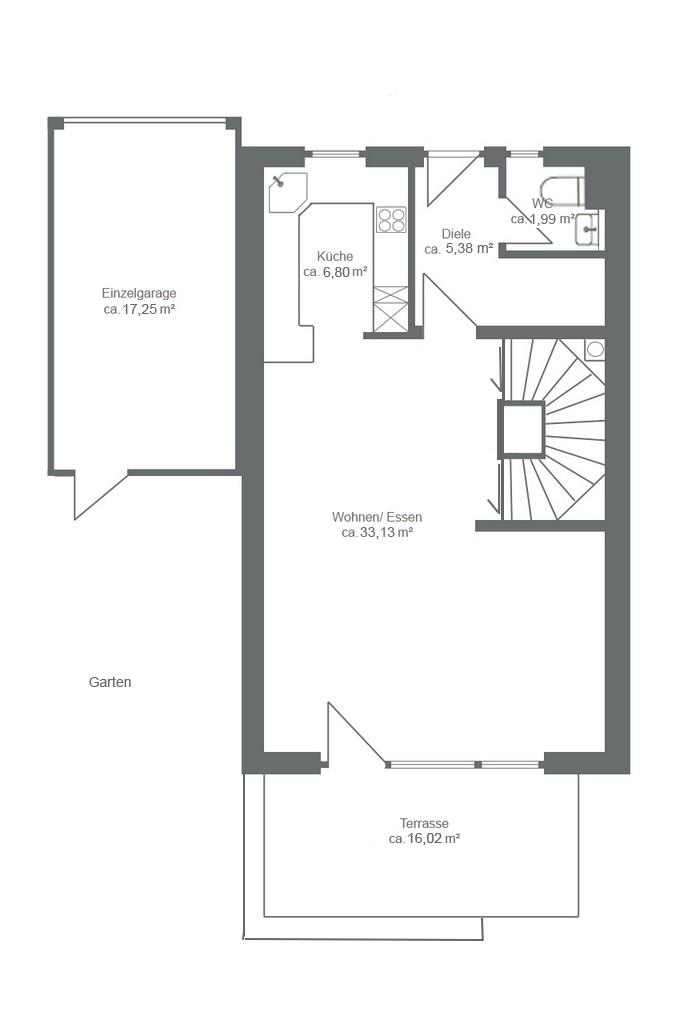
Auf ca. 226 m² Wohn- und Nutzfläche verteilt bietet das Haus einen offenen Wohn-/Essbereich mit vollausgestatteter Küche, 3 Schlafzimmer im OG, ein Dachstudio, welches als weiteres Schlafzimmer wie auch als Home Office nutzbar ist, 2 Bäder und 1 Gäste-WC. Im Untergeschoss befindet sich zudem noch ein Hobbyraum, ein Hauswirtschaftsraum/Werkstatt sowie ein Heiz-/Waschraum. Zum Haus gehört zudem eine großzügige Einzelgarage mit Vorplatz, über welche Sie ebenfalls direkt in den Garten gelangen.
Ein Highlight ist der idyllisch eingewachsene Garten mit großer Süd-Terrasse aus Edelholz, Markise, Gartenhäuschen und Pflanzenfläche. Der Garten ist über drei Wege zugänglich – regulär über das Haus, über die Garage oder aber über einen kleinen Pfad vom hinteren Teil des Grundstückes aus.
Das Haus wurde im Jahre 1999 in grundsolider Ziegelbauweise und guter Bausubstanz erbaut. Die Innenwände (tragend wie auch nicht tragend) wurden ebenfalls in Ziegelbauweise errichtet. Die doppelschalige Kommunwand wurde mineralisch gedämmt und sorgt für ausreichend Schallschutz zum Nachbarn. Das Satteldach in Zimmermannskonstruktion wurde mineralisch gedämmt. Die Holztreppe ist aus massiver Fichte. Im gesamten Haus ist mehrschichtiger Dielen-Parkettboden, Fliesen oder Teppichboden verlegt. Im Bad 1.OG und in der Küche befindet sich zudem eine Fußbodenheizung.
Über die Jahre wurden zudem einige Sanierungen vorgenommen – u.a. Fenster in 2014, Heizung in 2009, Dämmung der Westfassade. Auch Modernisierungen wie Böden und die Küche (2015) wurden vorgenommen.
Die ideale Dachneigung und Ausrichtung des Hauses bietet die optimale Voraussetzung für die Verlegung einer Photovoltaik-/ Solar-Anlage.
- LAGE
- zentrale und dennoch ruhige Lage
- familienfreundliche Anliegerstraße
- ALLGEMEINES
- gute Bausubstanz in grundsolider Ziegelbauweise
- Innenwände sind ebenfalls Ziegelwände
- 2-schalige, mineralisch gedämmte Kommunwand
- Holzdachstuhl in Zimmermannskonstruktion, mineralisch gedämmt
- Miteigentumsanteile an Pfad und Müllhaus
- ideale Voraussetzung für Photovoltaik-/Solar-Anlage
- HAUS & AUSSTATTUNG
- familiengerechtes Raumkonzept
- EG: offener Wohn-Essbereich, vollausgestattete Küche, Diele und Gäste-WC
- OG: 3 Schlafzimmer und 1 Tageslichtduschbad
- DG: Dachstudio, Tagelichtbadezimmer mit Badewanne, Stauraum im Dachstuhl
- UG: vollunterkellert, Hobbyraum, Werkstatt-/Vorratsraum, Heiz-/Waschraum
- Bodenbeläge: Dielen- Parkettboden / Teppichboden / Fliesen
- Fußbodenheizung im Bad 1.OG und Küche
- massive Holztreppe aus Fichte
- manueller Außenrollo im Wohnbereich
- GRUND
- idyllisch, eingewachsener Süd-West-Garten
- große Süd-Terrasse aus Edelholz und Markise
- Vorgarten mit Vorplatz / Stellplatz
- Einzelgarage mit direktem Zugang in den Garten
- an den Garten angrenzender Pfad (1/2 MEA)
- SANIERUNGEN
- 3-fach-verglaste Fenster 2014 (Ausnahme Wohnzimmer)
- Heizung 2009
- Außendämmung an Westfassade
- Küche 2015
- Modernisierungen: Böden, Terrassenboden, Gartenhaus
Mitten im Grünen im Süd-Osten von München gelegen befindet sich die Gemeinde Höhenkirchen-Siegertsbrunn mit rund 11.500 Einwohnern.
Das äußerst attraktiv gelegene Eckhaus befindet sich in zentraler Lage von Höhenkirchen-Siegertsbrunn. S-Bahn, Supermarkt wie auch das Ortszentrum sind in wenigen Gehminuten zu erreichen. Zugleich liegt es aber auch in einer absolut ruhigen Anliegerstraße/Spielstraße. Unmittelbar vor der Haustür finden Sie Spielplätze und Felder.
Es ist eine idyllische Gemeinde mit einem lebendigen Gemeindeleben und großem Angebot an Betreuung, Bildung sowie etlichen Freizeitangeboten von Sport bis hin zu Kultur und Tradition. Einladende Geschäfte des täglichen Bedarfs und Gastro finden sich über den Ort verteilt. Handwerk, Dienstleistungen wie Ärzte und Apotheken ergänzen das Angebot. Die Infrastruktur ist gerade für Familien gut geeignet: Mit der S-Bahn (S7), welche in 10 Gehminuten zu erreichen ist, sind es nur knapp 30 Minuten ins Zentrum von München.
Für die Kinderbetreuung steht neben Kinderkrippen und Mini-Kitas auch eine Vielzahl an Kindertagesstätten und Mittagsbetreuungen/Ganztagesbetreuung zur Verfügung. Zudem gibt es zwei Grundschulen mit einem Ganztagsangebot, eine Mittelschule und ein Gymnasium. Das Seniorenzentrum mitten im Ort bietet der älteren Generation leichte Anbindungen.
Die Gemeinde erfreut sich neben der äußerst günstigen Mikrolage auch einer optimalen Makrolage. Dank der naheliegenden Autobahnanbindung zur A99 und dem sich anschließenden Autobahnkreuz München-Süd sind Sie mit dem Auto rasch im Zentrum Münchens, auf dem äußeren Ring oder aber an den bayrischen Seen und in den Bergen. In wenigen Auto- wie auch Fahrradminuten befinden Sie sich direkt inmitten der Nachbargemeinden Hohenbrunn und Ottobrunn sowie im bekannten Gewerbegebiet Brunnthal Nord. Hier finden Sie Metro, Möbelhäuser (IKEA), Baumärkte bis hin zu Mode, Outlets (u.a. Nike) oder Schuhgeschäfte. Neben den ganzen Einkaufsmöglichkeiten bietet das Gelände auch interessante Freizeitmöglichkeiten wie eine Golfrange, die Jochen Schweizer Arena, mehrere Fitnesscenter, ein Hotel, Restaurants und ein Bowlingcenter.
Adresse
85635 Höhenkirchen-Siegertsbrunn
Die vollständige Adresse der
Immobilie erhalten Sie auf Anfrage.
Ansprechpartner
Natalie Ritter
Tel.: 089 444 55 66 - 12
Fax.: 089 444 55 66 - 10
Hubertusplatz 1
82041 Deisenhofen
