Das real geteilte Stadthaus auf einem 417 m² großen Hammergrundstück inkl. Zufahrt wurde im Jahre 2001 erbaut. Das Grundstück liegt zurückgesetzt in zweiter Reihe und ist über eine dem Grundstück zugehörigen Zufahrt zu erreichen.
Das anspruchsvoll gebaute Haus mit UG, EG, OG mit Galerie besticht durch eine grundsolide Bausubstanz (massive Ziegelbauweise), die ruhige dennoch zentrale Lage, einen optimal ausgerichteten Garten (Süd-West) und eine gelungene Raumaufteilung.
Es verfügt über Fliesen im UG, Keramikfliesen diagonal verlegt im EG sowie Parkett im OG und der Galerie. Zudem sind im ganzen Haus Außenjalousien angebracht. Es wird durch Radiatoren oder Fußbodenheizung beheizt.
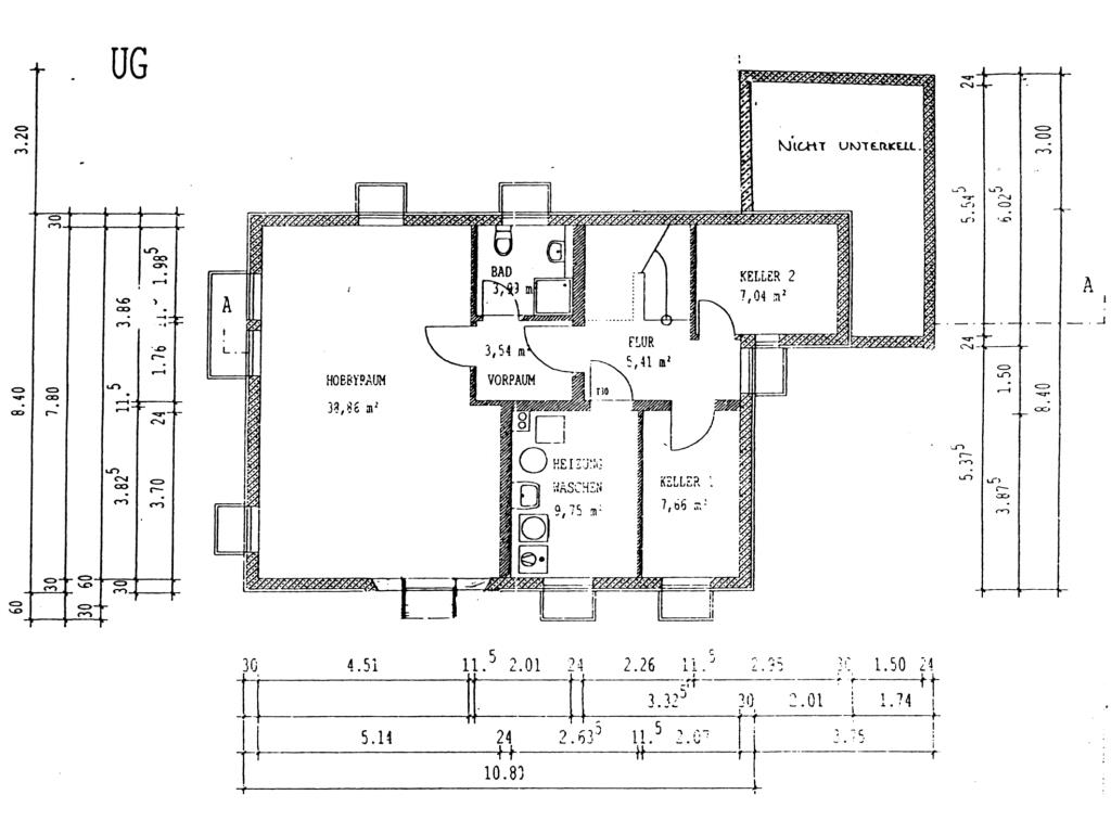
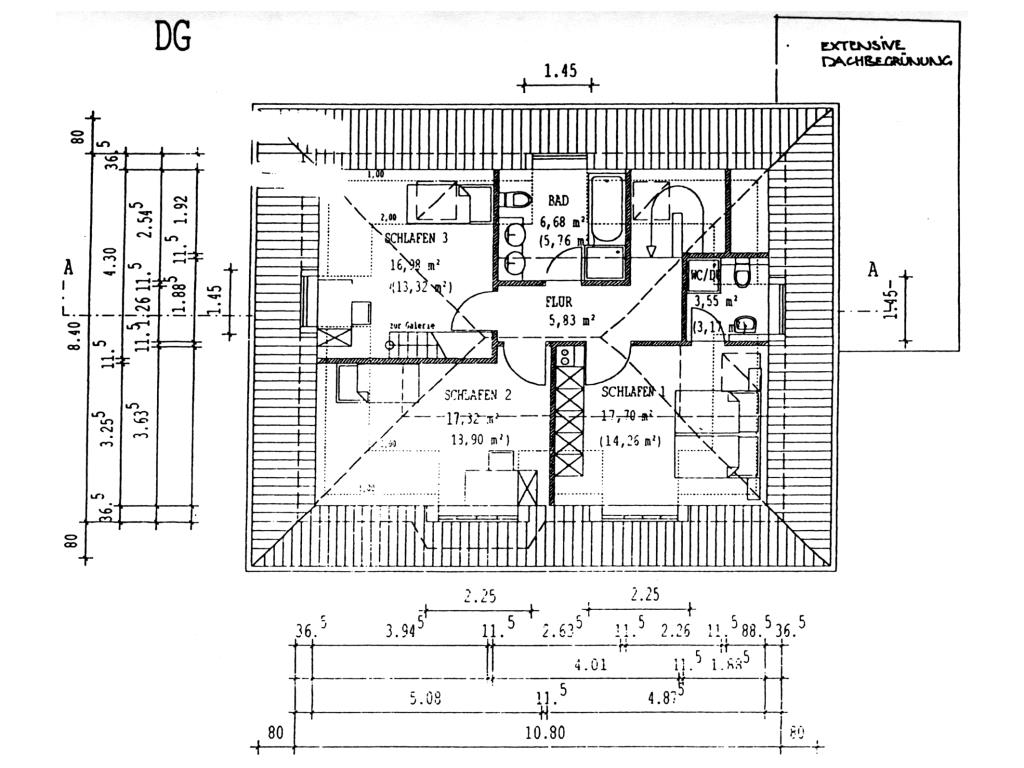
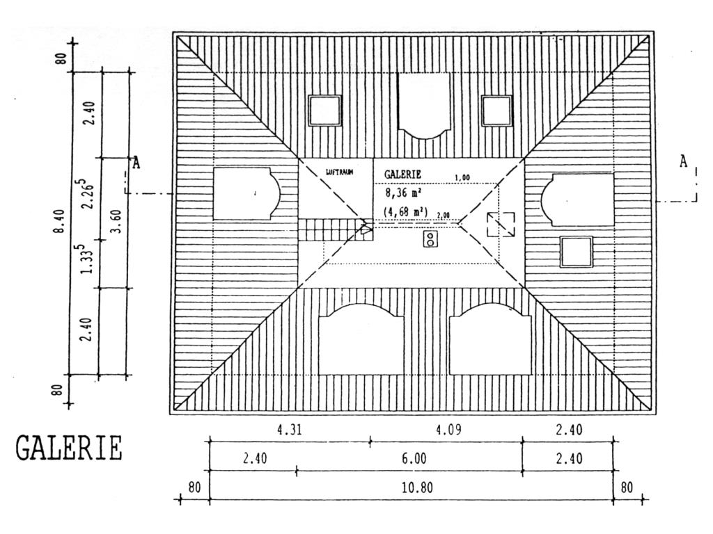
Der zum Koch-, Essbereich offen gehaltene Wohnbereich verfügt insgesamt über eine Wohnfläche von ca. 43 m² und öffnet sich durch eine große Fensterfront zu der nach Süd-Westen ausgerichteten Terrasse mit angrenzendem Garten. Zusätzlich befindet sich im EG ein Hauswirtschaftsraum/Garderobe, ein Gäste-WC und ein zusätzliches Zimmer, welches sich optimal als Büro eignet. Im OG gibt es drei helle Schlafzimmer mit großen Gauben. Eines der Zimmer (siehe Grundriss Zimmer 1) verfügt über ein eigenes kleines Duschbad. In einem weiteren Zimmer (siehe Grundriss Zimmer 3) gelangen Sie über eine kleine Treppe in eine charmante Galerie. Das in WU-Beton erbaute UG verfügt zudem über einen fast 40 m² großen, beheizten Hobbyraum mit großen Lichtschächten und einem extra Duschbad, wodurch es sich sehr optimal als Gästebereich anbietet. Zudem befinden sich hier ein Kellerabteil, ein Hauswirtschaftsraum und der Heiz– und Elektroraum.
Der kleine, jedoch uneinsehbare Süd-West-Garten ist liebevoll angelegt und bietet ausreichend Privatsphäre. Es befindet sich ein kleines Gartenhäuschen und ein Pavillon im Garten. Der Garten kann über den Wohnbereich, aber auch über die Zufahrt über ein Gartentürchen betreten werden. Die angrenzende Einzelgarage und der Vorplatz bietet ausreichend Platz für den Fuhrpark.
- massive Ziegelbauweise
- ruhige, zentrale Lage mit guter Infrastruktur
- Hammergrundstück in zweiter Reihe
- Süd-Westausrichtung
- uneinsehbarer, gepflegter und liebevoll angelegter Garten
- Baujahr 2001
- massive Ziegelbauweise
- großzügige, gelungene Raumaufteilung
- offener Wohn-, Ess-, Kochbereich (ohne Küche)
- Bürozimmer im EG
- 5 Zimmer zzgl. beheiztem Hobbyraum und eigenem Duschbad
- 3 Bäder und 1 Gäste-WC
- Bodenbeläge: Parkett und Fliesen
- Außenjalousien
- Fußbodenheizung und Radiatoren
- Einzelgarage mit Vorplatz / Außenstellplatz
Der beliebte Stadtbezirk Trudering mit seinen ca. 71.000 Einwohnern umfasst den östlichen Bereich Münchens. Im Westen grenzt er an die Stadtbezirke Berg am Laim und Bogenhausen, im Süden an den Stadtbezirk Ramersdorf-Perlach, im Norden an Johanneskirchen und im Osten an die Gemeinden Aschheim, Feldkirchen, Haar und Putzbrunn (alle im Landkreis München).
Geschäfte des täglichen Bedarfs, Ärzte sowie Grundschulen und weiterführende Schulen und die europäische Schule München befinden sich in der näheren Umgebung.
Das Perlacher Einkaufszentrum (PEP) ist mit dem Auto oder mit der U-Bahn schnell und bequem zu erreichen.
Die nächstgelegene U-Bahnstation (Quiddestraße, U5) erreichen sie zu Fuß in etwa 12 Minuten oder mit dem Bus (10-Minutentakt) in ca. 6 Minuten.
In die Innenstadt (Stachus) benötigt man mit dem Auto ca. 17 Minuten und mit den öffentlichen Verkehrsmitteln etwa 20 Minuten.
Trudering zählt zu einem der geschichtsträchtigsten Teile Münchens und verfügt über einige schöne Sehenswürdigkeiten wie zum Beispiel die Kirche St. Peter und Paul oder das Kriegerdenkmal.
Auch ist hier einiges an Freizeitmöglichkeiten geboten. Der Truderinger Wald ist die größte zusammenhängende Waldfläche im Münchner Stadtgebiet und ist ein bei Joggern und Spaziergängern sehr beliebtes Naherholungsgebiet.
Den Ostpark können Sie in etwa 8 Minuten Fußweg erreichen. An der nördlichen Seite des Ostparks befindet sich das Michaelibad. Dieses beinhaltet ein Frei- und ein Hallenbad, ist also im Winter wie im Sommer gleichermaßen beliebt. Hier ist für Groß und Klein viel geboten. Kinder haben hier eine große Wasserspiel-Landschaft, in der sie sich nach Herzenslust austoben können. Die Erwachsenen finden hingegen Entspannung in der weitläufigen Saunalandschaft mit finnischer Sauna, Dampfbad und Sanarium.
Im Kulturzentrum Trudering finden immer wieder verschiedene Veranstaltungen statt.
Adresse
81825 München
Die vollständige Adresse der
Immobilie erhalten Sie auf Anfrage.
Ansprechpartner
Natalie Ritter
Tel.: 089 444 55 66 - 12
Fax.: 089 444 55 66 - 10
Hubertusplatz 1
82041 Deisenhofen
