Bei diesem attraktiven und modernen Objekt aus dem Jahr 2010/11 handelt es sich um ein freistehendes Einfamilienhaus, welches sich auf einem 611 m² großen Grundstück in idyllischer und ruhiger Lage befindet. Mit einer Ausrichtung nach Süden und dem angrenzenden Wald im Norden ist es zudem optimal gelegen.
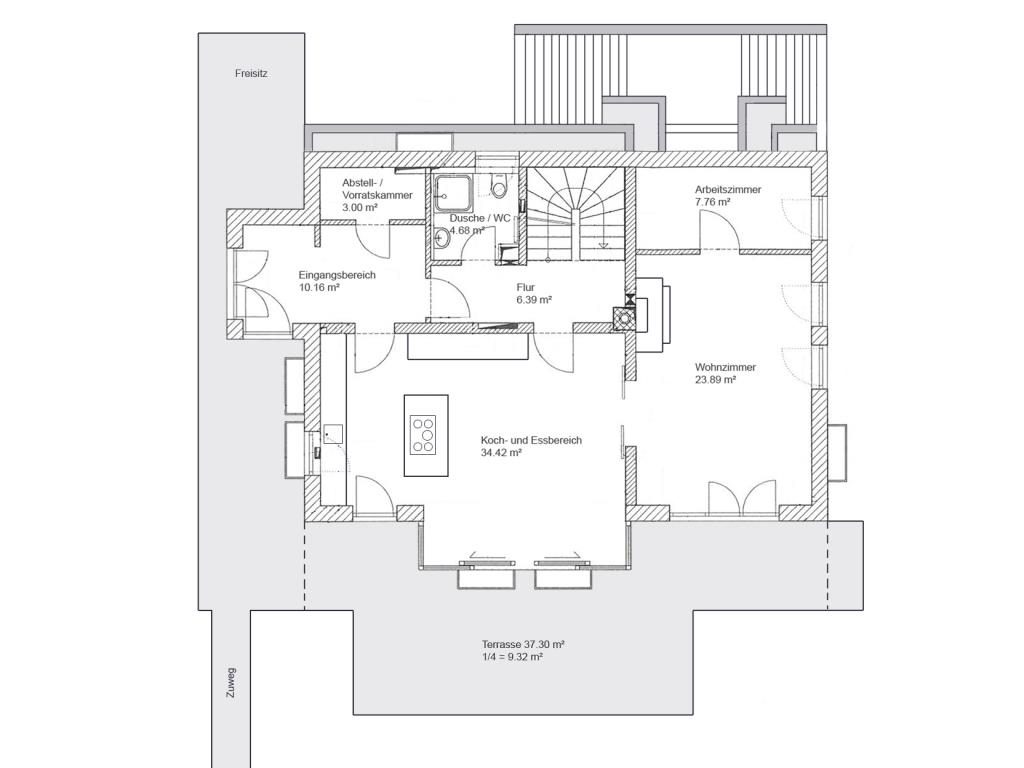
Der großzügige Eingangsbereich verfügt über eine Abstellkammer, ein Gäste-WC mit Tageslicht und Dusche sowie ein helles Treppenhaus.
Von dort aus gelangen Sie in den lichtdurchfluteten Koch- und Essbereich. Die Küche ist offen mit einer Kochinsel gestaltet und der Essbereich überzeugt durch den Glaserker, welcher auf die große Südterrasse führt. Das Wohnzimmer ist mit einem Heizkamin ausgestattet und führt zu einem Arbeitszimmer.
Das Obergeschoss besteht aus zwei nahezu gleichgroßen Kinderzimmern sowie dem 23 m² großen Elternschlafzimmer. Das große Tageslichtbadezimmer ist mit einer Badewanne sowie einer bodengleichen Dusche ausgestattet. Durch eine Raumhöhe von bis zu 3.26 m wirken die Räume sehr hell und geräumig.
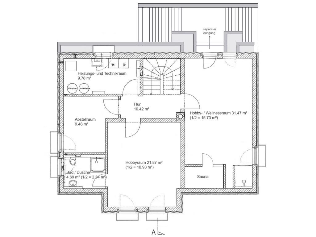
Das Untergeschoss bietet neben dem Heizungsraum (Luft-Wasser-Wärmepumpe) einen Abstellraum, ein großes Hobby- bzw. Gästezimmer mit angrenzendem Duschbadezimmer und einem Wellnessraum mit Sauna und einer weiteren bodengleichen Dusche. Der Wellnessraum ist von außen über die Abböschung separat zugänglich.
Im gesamten Haus wurde hochwertiges Feinsteinzeug sowie Parkett verlegt.
Eine Garage, ein überdachter Stellplatz sowie das hochwertige Gartenhaus runden das Angebot ab.
- Konventionelle Bauausführung
- offene Küche mit Kochinsel
- Glaserker im Essbereich
- Heizkamin im Wohnbereich
- großes Schlafzimmer
- 2 Kinderzimmer/ Büro/ Ankleide
- Wohlfühlbadezimmer und 2 weitere Duschbäder sowie Dusche in der Sauna
- Wellnessraum mit Sauna und separatem Ausgang
- Gästezimmer mit Bad
- schnelle Internetverbindung
- Garage und überdachter Stellplatz
- Luft-Wasser-Wärmepumpe sowie Solar für Brauchwasser
- Grauwasser-Zisterne zur Gartenbewässerung
Das kleine malerische Dorf Oberbiberg, dessen Maibaum Sie von Oberhaching kommend als Erstes erblicken, gehört zur Gemeinde Oberhaching/Deisenhofen und befindet sich ca. 5 Autominuten davon entfernt.
Das dem Maibaum gegenüberliegende Gasthaus Kandler empfängt an Sonn– und Feiertagen seine Gäste zum Frühschoppen und bietet anschließend gutbürgerlichen Mittagstisch. Besonders wegen der original erhaltenen Gaststube finden hier gelegentlich Film– und Fernsehproduktionen statt.
Bei den traditionellen Dorffesten oder beim Kegeln an jedem Freitag im Sommer treffen sich gern die Alteingesessenen mit den Neubürgern an einem Tisch.
Im Laufe der Zeit entstanden in Oberbiberg drei “Ortsteile”: der gehoben bäuerliche Ortsteil rund um die Kirche und den Kandlerwirt, die Zugspitzstraßen-Siedlung und die Waldsiedlung, in der sich unser Einfamilienhaus befindet. Diese hat sich in den letzten Jahren zu einer wunderschönen Familiensiedlung entwickelt.
Großzügige Grundstücke, alte herrliche Buchen und individuell gestaltete Häuser kennzeichnen diesen Ortsteil, der vielleicht gerade wegen seiner absoluten Ruhe von den hier vorwiegend ansässigen Ärzten, Schuldirektoren, Steuerberatern und selbständigen Handwerksmeistern geschätzt wird.
Auf der Landkarte vielleicht ein wenig abseits gelegen vereint der kleine Ort Oberbiberg doch viele Vorteile – ländliche Ruhe und die Nähe zu München. Der Gemeindesitz Oberhaching mit seinen S-Bahn-Anschlüssen (S3, Meridian) und die Autobahn München / Salzburg / Nürnberg sind in wenigen Minuten erreicht (4 km z.B. mit dem BibergerBürgerBus 11x tägl.). Alle Geschäfte des täglichen Bedarfs wie Supermärkte, Drogerien etc., sämtliche Ärzte, das Schulzentrum, aber auch zahlreiche Restaurants wie der beliebte Biergarten “Kugler Alm”, Eisdiele oder bayrische Schmankerl sind ebenfalls in Oberhaching/Deisenhofen vorhanden.
Adresse
82041 Oberbiberg
Die vollständige Adresse der
Immobilie erhalten Sie auf Anfrage.
Ansprechpartner
Stephan Ritter
Tel.: 089 444 55 66 - 11
Fax.: 089 444 55 66 - 10
Hubertusplatz 1
82041 Deisenhofen
