DIE WOHNUNG
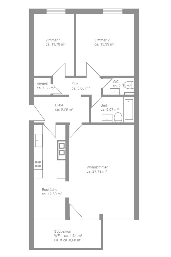
Entdecken Sie diese großzügige 3-Zimmer-Wohnung mit einer Wohnfläche von knapp 92 m², die Ihnen vielfältige Gestaltungsmöglichkeiten bietet. Die Wohnung ist teil-renovierungsbedürftig, sodass Sie sie ganz nach Ihren Wünschen und Vorstellungen ausstatten können.
Das Herzstück der Wohnung bildet das große Wohnzimmer, das in direkter Verbindung zur hellen Essküche steht. Diese offene Gestaltung sorgt für eine angenehme Wohnatmosphäre und ermöglicht eine optimale Nutzung des Raumangebots. Der großzügige Süd-Balkon ergänzt das Raumangebot ideal und lädt dazu ein, entspannte Stunden im Freien zu genießen.
Die beiden Schlafzimmer sind nach Norden ausgerichtet und bieten ruhige Rückzugsorte. Ein praktischer Vorteil ist die separate Abstellkammer, die zusätzlichen Stauraum für alltägliche Gegenstände bietet. Das Bad verfügt über einen Waschmaschinenanschluss, während das WC separat angeordnet ist – eine durchdachte Lösung für mehr Komfort im Alltag.
Zusätzlich gehört ein privater Hobbyraum im Untergeschoss zur Wohnung, der vielseitige Nutzungsmöglichkeiten eröffnet – sei es als Atelier, Werkstatt oder Abstellraum. Ein Kellerabteil sorgt für weiteren Stauraum.
Ein Tiefgaragenstellplatz im gegenüberliegenden Nachbarhaus rundet das Angebot ab und bietet Ihnen bequemen Zugang zu Ihrem Fahrzeug.
DIE WOHNANLAGE
Die Wohnanlage wurde im Jahr 1971 in einer wertbeständigen Ziegelbauweise erbaut und besteht aus insgesamt 12 Wohnungen auf 2 Stockwerke verteilt und sind durch zwei Hauseingänge zu erreichen. Die Grundstücksgröße der gesamten Gebäude- und Freifläche beläuft sich auf 1.369 m².
Das Wohnhaus verfügt im Untergeschoss über gemeinschaftliche Räumlichkeiten wie z.B. ein Wasch- und Trockenraum und ein Fahrradabstellraum. .
Das Wohngebäude befindet sich in einem gepflegten und für das Alter dementsprechenden guten Zustand.
Prinz-Ludwigs-Höhe / Solln
Die hier angebotene 3-Zimmer-Wohnung befindet sich in einer der begehrtesten Wohnlagen Münchens, im Stadtteil Solln, genauer gesagt in der ruhigen und grünen Umgebung der Prinz-Ludwigs-Höhe. Diese Lage vereint urbanes Leben mit naturnahen Erholungsmöglichkeiten und bietet somit eine hohe Lebensqualität.
Öffentliche Verkehrsmittel:
Die Anbindung an den öffentlichen Nahverkehr ist optimal. Die S-Bahn-Station “Solln” sowie mehrere Buslinien sind in wenigen Minuten zu Fuß erreichbar und ermöglichen eine schnelle Verbindung ins Münchner Stadtzentrum sowie zu anderen Stadtteilen. Dies macht die Lage besonders interessant für Pendler und Stadtliebhaber.
Infrastruktur:
Die Infrastruktur in Solln ist hervorragend. In unmittelbarer Nähe finden Sie diverse Einkaufsmöglichkeiten, darunter Supermärkte, Bäckereien und Fachgeschäfte, die den täglichen Bedarf abdecken. Der nahegelegener Sollner Ortskern bietet zudem eine Vielzahl an weiteren Geschäften, Cafés und Restaurants, die zum Verweilen einladen.
Gastronomie und Freizeitaktivitäten:
Die Gastronomische Vielfalt in Solln ist bemerkenswert. Von traditionellen bayrischen Wirtshäusern bis hin zu internationalen Restaurants ist für jeden Geschmack etwas dabei. Für Freizeitaktivitäten stehen Ihnen zahlreiche Möglichkeiten zur Verfügung. Die umlegenden Parks und Grünflächen, wie der nahgelegene Forstenrieder Park oder die Isar, laden zu Spaziergängen, Joggen und Radfahren ein. Auch Sporteinrichtungen und Vereine sind in der Umgebung vorhanden, die ein breites Spektrum an Aktivitäten anbieten, u.a. der Münchner Golfclub in Thalkirchen.
Bildungseinrichtungen:
Familien profitieren von einer ausgezeichneten Bildungsinfrastruktur. In Solln befinden sich mehrere Kindergärten, Grundschulen sowie weiterführende Schulen, die eine hohe Bildungsqualität bieten. Die gute Anbindung an private Schulen und internationale Schulen in der Umgebung macht diesen Standort besonders attraktiv für Familien.
Adresse
81479 München
Die vollständige Adresse der
Immobilie erhalten Sie auf Anfrage.
Ansprechpartner
Maximilian Ritter
Tel.: 089 444 55 66 - 13
Fax.: 089 444 55 66 - 10
Hubertusplatz 1
82041 Deisenhofen
