In solider und konventioneller Ziegelbauweise im Jahre 1969 errichtet erfüllt diese großzügige, real geteilte Doppelhaushälfte jegliche Ansprüche für die große Familie. Durch eine Hausbreite von guten 8 Metern über drei Etagen verfügt das Haus mit insgesamt ca. 184 m² reiner Wohnfläche und zusätzlichen ca. 216 m² Nutzfläche über viel Platz, um Ihr individuelles Eigenheim zu gestalten. Die Bausubstanz der Doppelhaushälfte befindet sich in einem guten Zustand, es müssen jedoch Renovierungen/Modernisierungen vorgenommen werden.
Über die Zufahrt mit Garagenvorplatz gelangen Sie zur Garage, von wo Sie direkt in das Haupthaus (Treppenabgang in das UG) oder aber in den Garten gelangen.
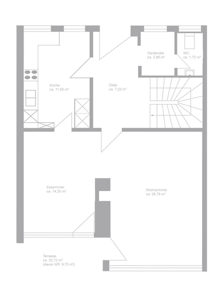
Über den kleinen Vorgarten treten Sie außerdem über den Haupteingang in eine geräumige Garderobe mit Gäste-WC ein und befinden sich in der großzügigen Diele des Hauses. Von hier kommen Sie in den Küchenbereich, welcher viel Platz für eine große Wohnküche bereitstellt. Von der Wohnküche, wie auch von der Diele aus, gelangen Sie in den Wohn-Essbereich, welcher durch eine Kaminwand räumlich voneinander getrennt ist. Wohn- wie auch Essbereich führen Sie hinaus auf eine liebevoll angelegte Südterrasse mit kleinem Teich und Brunnen. Von der Terrasse aus gelangen Sie auch in den helle Garage inklusive Wintergarten mit reichlich Fläche für eine Werkstatt oder Ähnliches, was eine echte Alternative zur herkömmlichen Garage bietet.
Abgerundet wird das perfekte Wohngefühl der Wohnebene mit großen Fensterflächen und einer ansprechenden Grundstücksgröße von 472 m² mit einer Ausrichtung in den Südgarten, der zu gemütlichen Momenten im Freien einlädt.
Im Obergeschoss befinden sich insgesamt 3 weitere Zimmer. Das Master-Schlafzimmer mit knapp 21 m² Fläche verfügt über ein eigenes Badezimmer sowie Zugang zur Südloggia. Die zwei weiteren Zimmer des Obergeschosses haben ebenfalls ein Badezimmer mit Badewanne und separatem WC. Zwei der insgesamt drei Zimmer verfügen über einen Zugang auf die Südloggia.
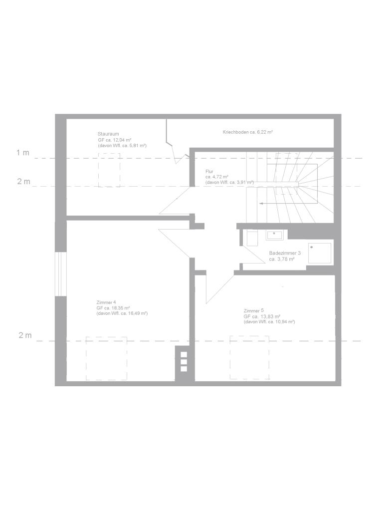
Das Dachgeschoss ist ausgebaut und umfasst zusätzlich eine Wohnfläche von ca. 41 m² bestehend aus 2 Zimmern, einem zusätzlichen Stauraum und einem dritten Badezimmer mit Dusche.
Das Untergeschoss verfügt über einen Hobby-/Fitnessraum. Im Anschluss befindet sich ein Wellnessbereich mit Sauna und Kaltbecken sowie eine ausgebaute Schwimmhalle mit großem Schwimmbad. Hier besteht jedoch sanierungsbedarf.
Weiterhin befinden sich im Untergeschoss noch zwei weitere Keller-/Vorratsräume, ein Waschraum und ein Heizraum. Das Untergeschoss ist zudem über eine Treppe aus der Garage zugänglich.
- zentrale Lage in Oberhaching/Furth
- ansprechende Grundstücksgröße von 472 m²
- real geteiltes Grundstück
- solide, konventionelle Ziegelbauweise
- Doppelhaushälfte (mit 8 Meter Breite)
- gute Bausubstanz
- 2-fachverglaste Holzfenster
- großzügige Zimmer
- gute Raumaufteilung
- ausgebautes Dachgeschoss
- 7 Zimmer
- davon 5 Schlafzimmer
- 3 Badezimmer
- Gäste-WC
- heller Wohn-/ Essbereich
- großzügige Wohnküche
- Kamin
- Wellnessbereich mit Sauna, Dusche und Kaltbecken
- sanierungsbedürftige Schwimmhalle mit großem Schwimmbecken
- Renovierungen/Modernisierungen müssen vorgenommen werden
- Südloggia
- liebevoll angelegte Südterrasse mit Brunnen und kleinem Teich
- Südgarten
- Garagenvorplatz und Garage mit Wintergarten
- Ölheizung (Anschluss an Fernwärme möglich)
- leerstehend
Das Grundstück befindet sich in Oberhaching im nördlichen Ortsteil Furth.
Oberhaching ist ein beliebter Vorort im Süden Münchens. Die Gemeinde verbindet anspruchsvoll-ländliches Wohnen und lebendige Traditionspflege mit der Nähe zur Landeshauptstadt München und zu südbayrischen Naherholungsgebieten.
Grundschulen und nahezu sämtliche weiterführenden Schulen (Mittel- und Wirtschaftsschule, Gymnasium und die Realschule) befinden sich direkt im Ort und genießen einen sehr guten Ruf. Die Versorgung mit Ärzten fast aller Fachrichtungen und zahlreiche Einkaufsmöglichkeiten sind gegeben. Der Ort verfügt zudem über eine große Anzahl an Kindergärten, Kinderkrippen sowie Horte. Die Volkshochschule bietet ein anspruchsvolles und reichhaltiges Programm. Kirchen sowie eine Vielzahl unterschiedlichster Vereine/Sportvereine (Sportschule Oberhaching in Fußnähe erreichbar) ergänzen das vielseitige Angebot dieser lebendigen und traditionsreichen Gemeinde.
Die Infrastruktur Oberhachings lässt ebenfalls keine Wünsche offen. Von Oberhaching zur Münchner Innenstadt benötigen Sie ca. 20 Minuten. Mit Deisenhofen und Furth stehen Ihnen gleich zwei S-Bahnstationen in Oberhaching zur Auswahl (S3, Regionalbahn “Meridian”). Der Autobahnanschluss zur A995 und A8 ist gut und schnell zu erreichen.
Mikrolage: Von der angebotenen Immobilie aus sind es lediglich 2 Minuten zur S-Bahnstation Furth entfernt, die nah gelegenen Buslinien 222 und 227 bringen Sie zudem in und durch die umliegenden Orte. Den Autobahnanschluss erreichen Sie in wenigen Fahrminuten.
Das herrliche wald- und wiesenreiche Umland werden Sie sehr rasch kennen und lieben lernen: ein wahres Erholungs- und Freizeitgebiet für Wanderer und Jogger, Radler, Reiter und Naturliebhaber. Mit dem Chiemsee im Südosten, dem landschaftlich einzigartigen Isartal im Westen und der Alpenkulisse im Süden kann es für Sie ein schöner Heimatort werden.
Adresse
82041 Oberhaching
Die vollständige Adresse der
Immobilie erhalten Sie auf Anfrage.
