Wohnanlage
Die hier angebotene Gartenwohnung befindet sich im Erdgeschoss einer 1988 erbauten Wohnanlage in bester Lage von Schwabing-West, welche zudem über die Jahre stetig renoviert und saniert wurde.
Wohnung
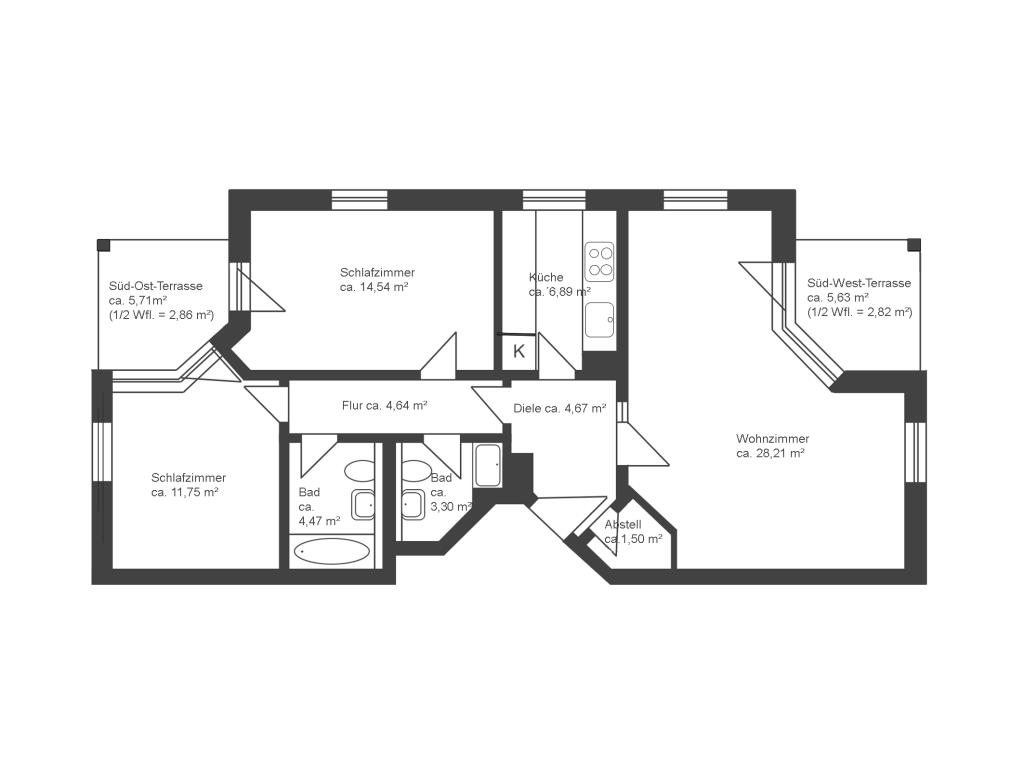
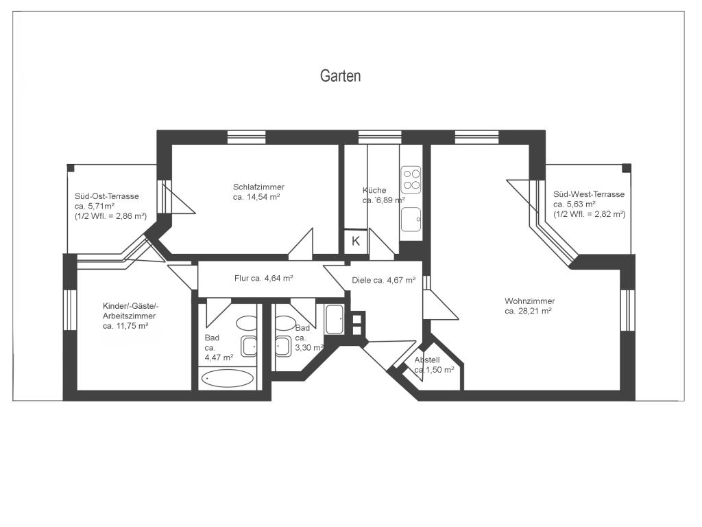
Insgesamt verfügt die ca. 91 m² große Wohnung über drei Zimmer— ein helles Wohn/-Esszimmer, ein großzügiges Schlafzimmer und ein weiteres vielfältig nutzbares Zimmer, welches sich wunderbar als Kinder– Gäste– oder aber Arbeitszimmer anbietet.
Zudem verfügt die Wohnung über zwei Badezimmer, einen geräumigen Eingangsbereich inkl. Abstellkammer, einen weiteren Flur und eine Einbauküche.
Die zweizeilige Einbauküche, mit jeglichen elektronischen Geräten, bietet allen Komfort. Eine Waschmaschine wie auch Trockner finden zudem Platz in der Küche.
Der Wohn/-Esszimmer mit Zugang zu einer der beiden Terrassen (Süd-West-Terrasse) lädt zu sonnigen Abendstunden im Sommer ein. Die zweite Terrasse (Süd-Ost-Terrasse) ist über die beiden anderen Zimmer oder über den Garten begehbar und ist besonders charmant für ein gemeinsames Frühstück mit frühmorgendlichen Sonnenstrahlen und Vogelgezwitscher.
Highlight der Wohnung ist vor allem der optimal nach Süden ausgerichtete Garten, welcher vom jetzigen Mieter liebevoll angelegt wurde. Mit einer reinen Grünfläche von ca. 120 m² inkl. einer eingebauten Sprinkleranlage und einem kleinen Schiff-Sandkasten, bleiben hier keine Wünsche offen.
Der Garten grenzt idyllisch an den gemeinschaftlichen Innenhof mit einer Größe von ca. 500 m² und verfügt über einen direkten Zugang.
Die Wohnung wurde mit Laminat ausgelegt, die beiden Bäder sind komplett gefliest und verfügen jeweils über eine Badewanne sowie eine Dusche.
Ein abschließbarer Tiefgaragenstellplatz gehört mit zur Wohnung. Ein Trockenraum sowie ein idyllischer Innenhof, welche der Gemeinschaft zur Verfügung stehen, runden das Angebot ab.
Bitte beachten Sie das der Wohnung kein Kellerabteil zur Verfügung steht.
- zentrale, gute Lage
- gepflegte Wohnanlage
- ca. 500 m² großer Innenhof
- Trockenraum
- Tiefgarage mit Waschplatz
- Erdgeschosswohnung
- 3-Zimmer
- gemütlicher Wohn-/Essbereich
- Schlafzimmer plus Kinder-/Gäste-Arbeitszimmer
- 2 Badezimmer (Duschbad und Bad mit Wanne)
- geräumiger Eingangsbereich
- weiterer Flur
- nicht einsehbarer Süd-Garten
- guter Schnitt
- Laminatboden
- manuell betriebene Außenrollladen
- Waschmaschinenanschluss in der Wohnung
- KEIN Kellerabteil vorhanden
- abschließbarer TG-Stellplatz
- ca. 120 m² großer Süd-Garten
- überdachte Süd-Ost-Terrasse
- überdachte Süd-West-Terrasse, inkl. Sprinkleranlage und kleinem Schiff-Sandkasten
Schwabing-West liegt im Münchner Norden, westlich der Isar und nördlich der Maxvorstadt. Mit seinen knapp 16.000 Einwohnern ist Schwabing-West eine der besten Wohnlagen Münchens.
Mit dem Kurfürstenplatz, dem Hohenzollernplatz oder dem Elisabethplatz liegen ein paar der bekanntesten Münchner Plätze in diesem schönen Stadtteil. In den Luitpoldpark kommen Besucher aus ganz München. In der Mitte des Parks befindet sich ein Obelisk, welcher zu Ehren des Prinzregenten Luitpold erbaut wurde. Hier reihen sich architektonische Gebäude aneinander, wie zum Beispiel das “Bamberger”. Die Gaststätte mit Biergarten ist ein beliebtes Ausflugsziel. Die katholische Kirche St. Ursula ist eine der schönsten Kirchen Münchens.
Kleine Boutiquen, Dekorationsläden und Antiquitäten in Hinterhöfen reihen sich zwischen Kurfürstenplatz und Leopoldstraße an kleine Straßencafés und Lokale. Der Elisabethmarkt, welcher sich mitten im Herzen von Schwabing-West befindet, gehört zu den konstanten Märkten der Stadt. Im kleinen Biergarten kommen Münchner zusammen und direkt gegenüber wartet mit der Schauburg, dem Theater der Jugend, ein kulturelles Highlight. Sei es der Englische Garten oder der Olympiapark, die Wohnung liegt inmitten beider Grünanlagen.
Weiterhin haben Sie hier eine sehr gute Infrastruktur – alle Geschäfte des täglichen Bedarfs wie Supermärkte, Apotheken etc. befinden sich in unmittelbarer Nähe fußläufig entfernt. Sämtliche Ärzte, Restaurants und Cafés sind ebenfalls vorhanden. In lediglich 5 Minuten sind Sie fußläufig auf der Leopoldstraße. Die Busstation 142 befindet sich direkt vor der Haustür, in 10 bis 15 Minuten erreichen Sie die U-Bahn-Stationen Bonner Platz und Scheidplatz. Die Münchner Innenstadt (Marienplatz) erreichen Sie sowohl mit den öffentlichen Verkehrsmitteln als auch mit dem Auto in einer Viertelstunde. Die Autobahn A9 erreichen Sie in 5 Autominuten und den Flughafen München in lediglich 30 Autominuten.
Adresse
Isoldenstr. 38
80804 München
Die vollständige Adresse der
Immobilie erhalten Sie auf Anfrage.
Ansprechpartner
Natalie Ritter
Tel.: 089 444 55 66 - 12
Fax.: 089 444 55 66 - 10
Hubertusplatz 1
82041 Deisenhofen
