DAS GRUNDSTÜCK
Das im Süden von München gelegene sonnige Grundstück umfasst 600 m² und befindet sich in einer ruhigen Nachbarschaft bestehend aus Einfamilien- und Doppelhäusern. Die Ausrichtung nach Süd-Westen und die Norderschließung ist zudem optimal gegeben.
DAS HAUS
Das luxuriöse Einfamilienhaus wurde 2007 in bester Ausführung mit intelligenter Haustechnik erbaut. Innen wie außen überzeugt es durch Großzügigkeit: die Wohnfläche beläuft sich auf ca. 244 m² zzgl. einer Nutzfläche von ca. 172 m². Die große Süd-West Terrasse ist mit hochwertigem Granit und die Ostterrasse mit einem massiven Terrassenholz belegt.
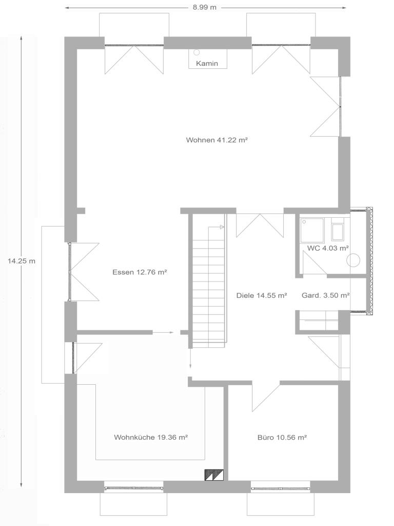
Der großzügige Eingangsbereich, welcher mit dem eleganten und offenen Treppenhaus verbunden ist, verfügt über eine Garderobe sowie ein Gäste-WC. Von hier aus sind alle Zimmer des Erdgeschosses erreichbar. Zur Linken befindet sich ein kleines Zimmer, welches optimal als Büro genutzt werden kann. Zur Rechten gelangen Sie in das große lichtdurchflutete Wohnzimmer mit einem großen und offenen Kamin. Der Wohnbereich geht fließend über in den Essbereich mit Zugang zu der großzügigen Wohnküche, welche über viel Stauraum und sämtliche Elektrogeräte verfügt.
Das Obergeschoss besteht aus drei nahezu gleichgroßen Kinderzimmern mit eigenem Duschbad sowie dem Elternschlafzimmer mit direktem Zugang zu dem geräumigen Badezimmer und einem Ankleideraum.
Im Untergeschoss steht Ihnen ein großer Wellnessbereich mit getrenntem Badezimmer sowie ein Gästezimmer oder Medienraum zur Verfügung.
Weiterhin befindet sich hier ein großzügiger und heller Hobbyraum sowie ein Abstellraum, ein Wasch– und ein Technikraum.
Über eine Schleuse gelangen Sie in den Kellerbereich unter der Doppelgarage, welcher aus einer Werkstatt, einem weiteren großen Abstellraum sowie einem Weinkeller besteht.
Der Garten ist liebevoll und pflegeleicht von einem renommierten Landschaftsgärtner angelegt.
- MERKMALE
- massive Ziegelbauweise
- intelligente Haustechnik (Staubsaugeranlage, Wäscheabwurf usw.)
- großzügiger Wohnbereich
- 3 Tageslichtbäder (im OG, UG)
- Gäste-WC im EG (Duschanschluss vorhanden)
- SieMatic Einbauküche im EG
- Feinsteinfliesen im Eingangsbereich, Küche, WC und in den Bädern sowie im Flur im UG
- hochwertiger Vollholzparkett im Wohn-, Schlaf- und Hobby-/Gästezimmer
- großer Wellnessbereich
- Weinkeller
- 3 Terrassen
- gepflegter und uneinsehbarer Garten
- Fernwärme / Zentralheizung
- große Doppelgarage
Oberhaching, gelegen im Südosten Münchens, ist eine Flächengemeinde mit über 14.500 Einwohnern. Die Gemeinde Oberhaching verfügt mit den integrierten Ortsteilen Deisenhofen und Furth gleich über zwei S-Bahn-Anschlüsse (S3 Holzkirchen/Maisach, ca. 20 min, in die Münchner Innenstadt). Des weiteren hält der “Meridian” in Deisenhofen (München Hbf – Holzkirchen – Rosenheim – Salzburg/Kufstein), welcher Sie auf anderem Wege in die Stadt oder in Richtung Süden befördert. Beide Bahnhöfe sind gut und einfach zu erreichen.
Die Infrastruktur ist hervorragend: Der Ort verfügt über acht Kindertagesstätten mit Krippe, Kindergarten und Hort sowie alle Schulformen. Sämtliche Einkaufsmöglichkeiten und eine ausgezeichnete medizinische Versorgung durch verschiedene Ärzte und Apotheken tragen zur hohen Lebensqualität von Oberhaching bei.
Eine Vielzahl von Sport- und Erholungsgebieten ist ebenso vorhanden.
Der Autobahnanschluss zur A995 und A8 ist weit genug weg, um die Ruhe nicht zu stören, aber nahe genug, um schnell Richtung München oder in die Berge zu kommen.
Adresse
82041 Oberhaching
Die vollständige Adresse der
Immobilie erhalten Sie auf Anfrage.
Ansprechpartner
Stephan Ritter
Tel.: 089 444 55 66 - 11
Fax.: 089 444 55 66 - 10
Hubertusplatz 1
82041 Deisenhofen
