Bei diesem Objekt handelt es sich um ein individuelles und hochwertiges Wohn- und Geschäftsgebäude im Ortskern von Gmund am Tegernsee.
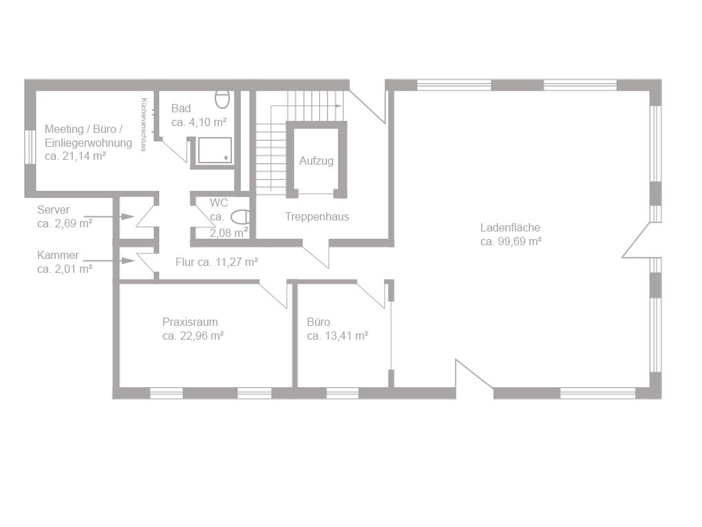
Die Einheit liegt im Erdgeschoss, verfügt über eine ca. 100 m² lichtdurchflutete Ladenfläche, drei weitere Büroräume, ein Badezimmer, ein Gäste-WC, eine Kammer und einen Serverraum. Die großen Fensterflächen rund um die Gewerbeeinheit bieten die ideale Möglichkeit Produkte, Waren oder auch Dienstleistungen bestens zu repräsentieren.
Die Einheit wurde mit einem hochwertigen Steinbelag ausgestattet. Beheizt wird die komplette Gewerbeeinheit mit einer Fußbodenheizung. Ein Aufzug verbindet alle Etagen miteinander, sodass Sie ohne Probleme vom Erdgeschoss in die Tiefgarage gelangen.
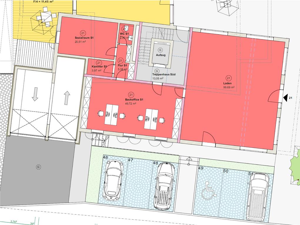
Rund um die Gewerbeeinheit befindet sich eine große Anzahl öffentlicher Parkplätze. Zwei ebenerdige TG-Stellplätze und zwei Außenstellplätze sind der Einheit zugeordnet.
- Merkmale & Ausstattung
- Gewerbeeinheit im Erdgeschoss mit einer Bruttogesamtfläche von ca. 182 m²
- (Fläche nach aktuellem Grundriss ca. 179,35 m²)
- großzügige Laden-/Verkaufsfläche
- 3 weitere Büroräume
- Badezimmer mit Dusche
- Gäste-WC
- Abstellkammer + Serverraum
- Fußbodenheizung
- 2 x TG-Stellplätze = je 50 EUR
- 2 x Außenstellplätze = je 30 EUR
- Mögliche Verwendungen:
- Büro, Praxis, Büro mit Lagerung, Schulung usw.
- Gewerbehebesatz der Gemeinde Gmund am Tegernsee: 350 v.H.
Autobahnauffahrt Holzkirchen (A8): ca. 15 Minuten
Bahnstation Gmund am Tegernsee: 10 Gehminuten
Hauptbahnhof München: ca. 1 Stunde mit der BRB
Flughafen München: ca. 50 Fahrminuten
Bad Wiessee: ca. 5 Fahrminuten
Tegernsee: ca. 6 Fahrminuten
Rottach-Egern: ca. 11 Fahrminuten
Adresse
83703 Gmund
Die vollständige Adresse der
Immobilie erhalten Sie auf Anfrage.
Ansprechpartner
Maximilian Ritter
Tel.: 089 444 55 66 - 13
Fax.: 089 444 55 66 - 10
Hubertusplatz 1
82041 Deisenhofen
