Bei diesem Objekt handelt es sich um eine individuelle und hochwertige Büro-, Lager- und Produktionsfläche inmitten des Gewerbegebiets Oberhaching.
Die zwei hier angebotenen Gewerbeeinheiten befinden sich im Erdgeschoss und im Souterrain. Beide Einheiten sind über das gemeinschaftlichen Treppenhaus miteinander verbunden.
Das EG mit ca. 263 m² besteht aus einem Empfangsbereich, 4 Büroräumen, einem Großraumbüro / Ausstellungsraum, zwei getrennten Toiletten, einer Teeküche und einem Serverraum. Ein sich in der Einheit befindender Lastenaufzug, welcher auch zusätzlich vom Außenparkplatz aus zu beladen ist, verbindet zudem das Erdgeschoss mit dem Untergeschoss.
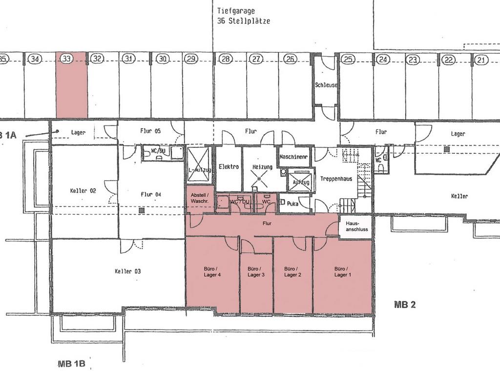
Im Souterrain befinden sich weiterhin vier helle Büro- / Lagerräume, zwei Toiletten (eine davon mit Dusche) und es erstreckt sich über eine Größe von insgesamt ca. 134 m².
Zu den Gewerbeeinheiten gehören zwei TG-Stellplätze und fünf Außenstellplätze.
Die Einheit ist noch bis zum 31.07.2026 an den derzeitigen Mieter vermietet. Wir suchen bis zum Ende des Mietverhältnis einen Untermieter, welcher im Anschluss und bei weiterem Interesse ab dem 01.08.2026 in einen neuen Mietvertrag mit dem Vermieter abschließen kann.
Nettomiete EG: 2.984 EUR
Nettomiete Souterrain: 1.104 EUR
zzgl. 3,80 % HSVW-Kosten auf die Nettomiete
zzgl. Nebenkosten 1.430 EUR = ca. 3,60 EUR / m²
zzgl. 19 % MwSt.
2x TG-Stellplatz á 56 EUR + 3,80 % HSVW-Kosten
5x Außenstellplatz á 48 EUR + 3,80 % HSVW-Kosten
zzgl. 19 % MwSt.
Bruttowarmmiete gesamt inkl. MwSt. = 7.182 EUR
- MERKMALE & AUSSTATTUNG
- Multifunktionale Gewerbefläche im EG mit 6 Räumen – 262,98 m²
- zzgl. ca. 133,59 m² extra Büro- / Lagerfläche im Souterrain
- Kautschukbodenbelag im EG
- Vinylboden in Holzoptik und PVC-Boden im Souterrain
- Verdunkelung durch Außenjalousien
- Lastenaufzug
- EDV-Verkabelung
- Glasfaseranschluss in der Straße
- Teeküche
- Getrennte Sanitäreinrichtungen im EG und Souterrain (Damen & Herren)
- Duschbad im Souterrain
- 2 TG-Stellplatz und 5 Außenstellplätze können gegen Aufpreis dazu gemietet werden
- Nutzungsmöglichkeiten:
- Büro, Produktion, Fertigung, Schulung, Büro mit Lagerung, usw.
- Gewerbehebesatz der Gemeinde Oberhaching: 250 v.H.
Oberhaching, südlich von München gelegen, verfügt über eine komplette Infrastruktur.
Von Oberhaching zur Münchner Innenstadt benötigen Sie ca. 20 Minuten. Mit Deisenhofen und Furth stehen Ihnen gleich zwei S-Bahn-Stationen in Oberhaching zur Verfügung (S3). Der MVV-Bus (Nr. 224 / 227, Bushaltestation im Gewerbegebiet “Schmidweg”) verbindet das Gewerbegebiet Oberhaching mit dem Ortskern (Bahnhofstraße) sowie mit beiden S-Bahn-Stationen.
Weiterhin hält in Deisenhofen die Regionalbahn RB58 (direkte Verbindung mit Rosenheim; hält auch in Holzkirchen, Kreuzstraße, Westerham, Bruckmühl, Heufeldmühle, Heufeld, Bad Aibling, Bad Aibling Kurpark und Kolbermoor). Fahrten zum Münchner Hauptbahnhof u.a. über Solln und Harras werden während den Hauptverkehrszeiten ca. zweimal pro Stunde angeboten.
Mit einem Gewerbesteuerhebesatz von 250% liegt Oberhaching in einem attraktiven Bereich und lockt somit eine Vielzahl erfolgreicher Unternehmen an.
Zum Mittagstisch bietet Oberhaching zahlreiche Lokalitäten für jeden Geschmack und jede Preisklasse.
ENTFERNUNGEN:
Autobahnauffahrt Oberhaching (AB8 / AB99): 5 Minuten
S-Bahnhof Furth (S3): 10 Minuten Gehweg
S-Bahnhof Deisenhofen (S3): 5 Minuten Fahrtweg
Bushaltestation “Schmidweg”: 1 Minuten Gehweg
Flughafen München: 40 Minuten Fahrtweg
Hbf München: 30 Minuten Fahrtweg
Adresse
82041 Oberhaching
Die vollständige Adresse der
Immobilie erhalten Sie auf Anfrage.
Ansprechpartner
Maximilian Ritter
Tel.: 089 444 55 66 - 13
Fax.: 089 444 55 66 - 10
Hubertusplatz 1
82041 Deisenhofen
