Das geräumige Reiheneckhaus wurde 1992 in massiver Ziegelbauweise auf einem 405 m² großen und ebenen Grundstück errichtet.
Das Haus wurde 2016 an die Fernwärme der Gemeinde Oberhaching (Geothermie) angeschlossen.
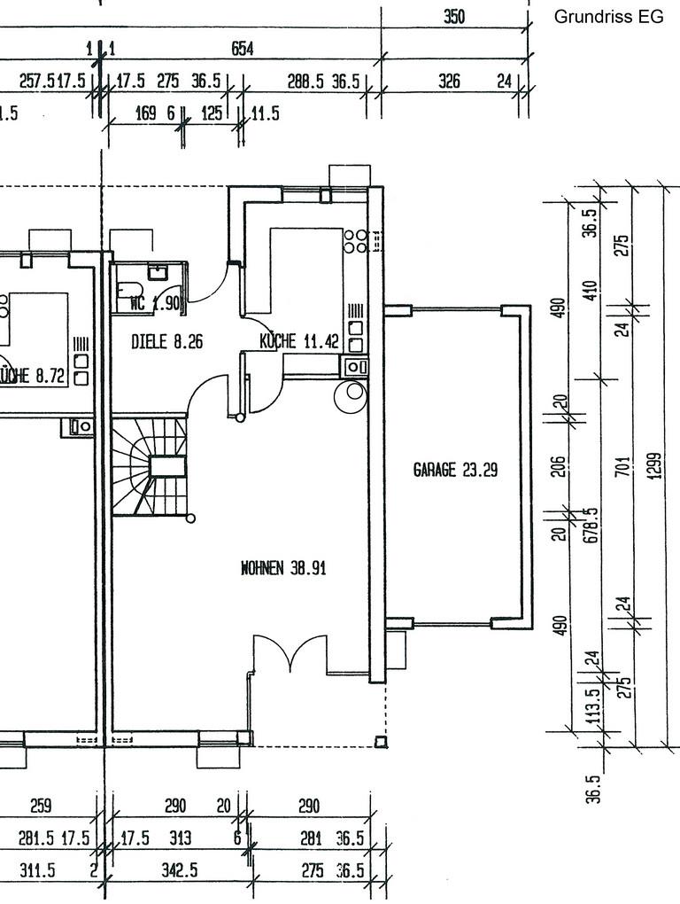
Erdgeschoss
Durch einen großzügigen Dielenbereich mit eingebautem Garderobenschrank und anschließendem Gäste-WC gelangt man sowohl in die Küche wie auch in den hellen und offenen Wohn- und Essbereich.
Die Küche ist mit einer hochwertigen Einbauküche inkl. Granitarbeitsplatte und Bosch-Elektrogeräten ausgestattet.
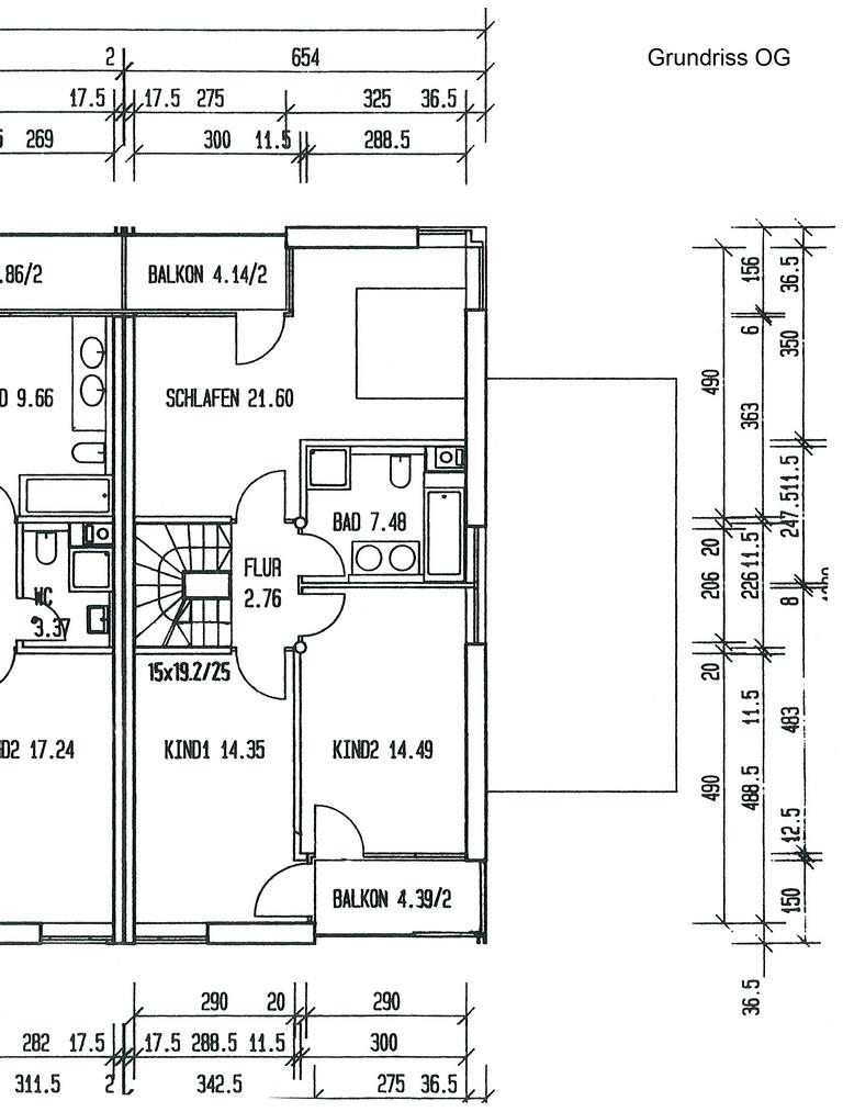
Obergeschoss
In dieser Etage befinden sich ein großes Schlafzimmer mit ca. 22 m², zwei Kinderzimmer mit je ca. 14 m² sowie ein geräumiges Badezimmer mit Doppelwaschbecken, Wanne und Dusche. Zu beiden Seiten des Hauses schließen sich Balkone an, welche von den Schlafräumen aus zugänglich sind.
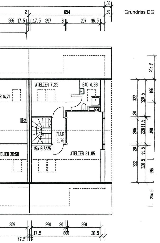
Dachgeschoss
Im Dachgeschoss befinden sich ein weiteres großes Zimmer mit ca. 22 m² und ein zusätzlicher Raum, an welchen ein Badezimmer mit Dusche angrenzt.
Außenanlagen
Auf der Süd-Westseite des Hauses liegt der große Garten mit einer gemütlichen Terrasse, welche auch mit einer Markise zur Verschattung ausgestattet ist. Durch die ideale Ausrichtung können Sie auch bis Abends die Sonne genießen.
Auf der Ostseite des Hauses befindet sich eine ca. 7m lange Garage mit viel Stauraum, welche den vorderen Bereich des Haues vom Garten trennt. Des Weiteren gibt es vor dem Haus noch ein Gartenhaus mit weiterem Stauraum für Gartengeräte, Fahrräder usw.
- Parkettboden (Buche) in den Wohnräumen
- Laminatboden in den Schlafzimmern
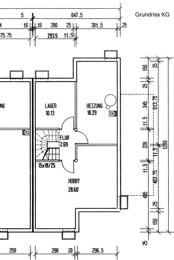
- großzügiger Hobbyraum
- beige Fliesen in Küche und Eingangsbereich
- Bäder in weiß bzw. Holzoptik gefliest
- hochwertige Einbauküche von Küchen-Dross mit Granitplatte und Bosch-Einbaugeräten
- Fernwärme Geothermie
- 7m lange Garage mit viel Stauraum
Das hier angebotene Reiheneckhaus befindet sich in ruhiger und dennoch zentraler Lage im westlichen Teil von Oberhaching, im sogenannten “Forstanger”.
Das Objekt liegt in unmittelbarer Nähe des Deisenhofener Forstes. In wenigen Minuten erreichen Sie das Einkaufszentrum Deisenhofen, das Schulzentrum und den S-Bahnhof.
Eingebettet in üppiges Grün erstreckt sich die Gemeinde entlang des Perlacher/Grünwalder und Deisenhofener Forsts und dem landschaftlich einzigartigen Isartal im Westen. Modernes Landleben in einer familienorientierten, traditionellen Atmosphäre mit einer hervorragenden Infrastruktur zur Münchner Innenstadt (ca. 15 km) macht Oberhaching zu einer der Spitzenlagen im Münchner Süden.
In Oberhaching/Deisenhofen sind jegliche Schulformen vorhanden, welche alle in Fuß- und Fahrradnähe zu erreichen sind, seien es zahlreiche KiTas und Kindergärten, zwei Grundschulen, eine in naher Zukunft neu erbaute Realschule und FOS, wie auch das Oberhachinger Gymnasium mit sprachlichem sowie naturwissenschaftlich-technologischem Zweig. Für die Schüler der Munich International School oder der Pater-Rupert-Meier-Schulen verkehren Schulbusse.
Alle Geschäfte des täglichen Bedarfs, kleine Cafés und feine Restaurants findet man hier neben Feinkostläden oder anderen ortsüblichen Einzelhandelsschäften. Eine ausgezeichnete medizinische Versorgung durch Ärzte, Zahnärzte und Apotheken tragen zur hohen Lebensqualität von Oberhaching bei.
Freizeit- und Erholung? Suchen Sie sich etwas aus!
Beinahe unendlich sind die Fahrrad- und Wanderwege. Das aus natürlichen Quellen gespeiste Further-Naturbad bietet im Sommer die passende Erfrischung. Der beliebte Deininger Weiher lädt zum Baden ein und das nahe Isartal zu langen Spaziergängen.
Der Grünwalder Forst bietet mit dem Walderlebniszentrum Adrenalin im Kletterpark. Reiten in den umliegenden kleinen Dörfern, Fußball, Tennis- und Squashclubs sowie die Golf Range Brunnthal und Münchener Golf Club in Straßlach werden im nahen Umkreis angeboten.
Auch für Wochenend-Ausflüge in die Berge oder zu den umliegenden Seen ist Oberhaching mit der Anbindung an die A8/A995 der ideale Ausgangspunkt.
Sei es ein Ausflug an den Chiemsee, Tegernsee, Schliersee, Starnberger See oder Ammersee – Sie haben die Wahl.
Die S-Bahn-Haltestelle Deisenhofen (S3 Holzkirchen-Mammendorf) verbindet den Ort mit München und dem Umland. Weiterhin hält in Deisenhofen der Meridian. Diverse Buslinien verbinden Deisenhofen mit umliegenden Orten wie z.B. Neuperlach Süd, Grünwald, Höllriegelskreuth, Dietramszell, Geretsried, Sauerlach, Putzbrunn, Haar, Heimstetten, Endlhausen und Wolfratshausen.
Adresse
82041 Oberhaching
Die vollständige Adresse der
Immobilie erhalten Sie auf Anfrage.
Ansprechpartner
Alina Seiz
Tel.: 089 444 55 66 - 14
Fax.: 089 444 55 66 - 10
Hubertusplatz 1
82041 Deisenhofen
