Die geräumige Doppelhaushälfte wird derzeit in massiver Ziegelbauweise auf einem 484 m² großen Grundstück errichtet und wird voraussichtlich im Juni/Juli 2025 fertiggestellt.
Das Haus wird mit einer Luft-Wasser-Wärmepumpe und auf dem Dach mit einer Photovoltaikanlage zur Stromgewinnung ausgestattet.
Erdgeschoss
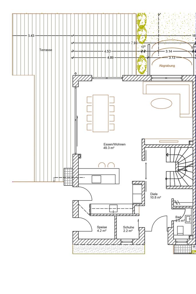
In das Haus gelangen Sie durch einen geräumigen Dielenbereich, an welchen sich ein offener und ein geschlossener Garderobenbereich anschließen sowie eine Gästetoilette.
Diese Etage besticht insbesondere durch den ca. 50 m² großen, hellen und offen gestalteten Wohn-, Ess- und Kochbereich. Von hier haben Sie Zugang auf die Terrasse und in den Garten.
Die Küche wird mit einer Einbauküche inkl. hochwertiger Elektrogeräte ausgestattet. Zudem befindet sich im hinteren Bereich eine abgetrennte Speisekammer.
Sowohl der Kochbereich wie auch die Speisekammer verfügen über einen Zugang von außen, um bequem und auf kurzem Weg die Einkäufe von der Garage in diesen Bereich zu transportieren.
Vor dem Haus befinden sich eine Einzelgarage und ein Stellplatz.
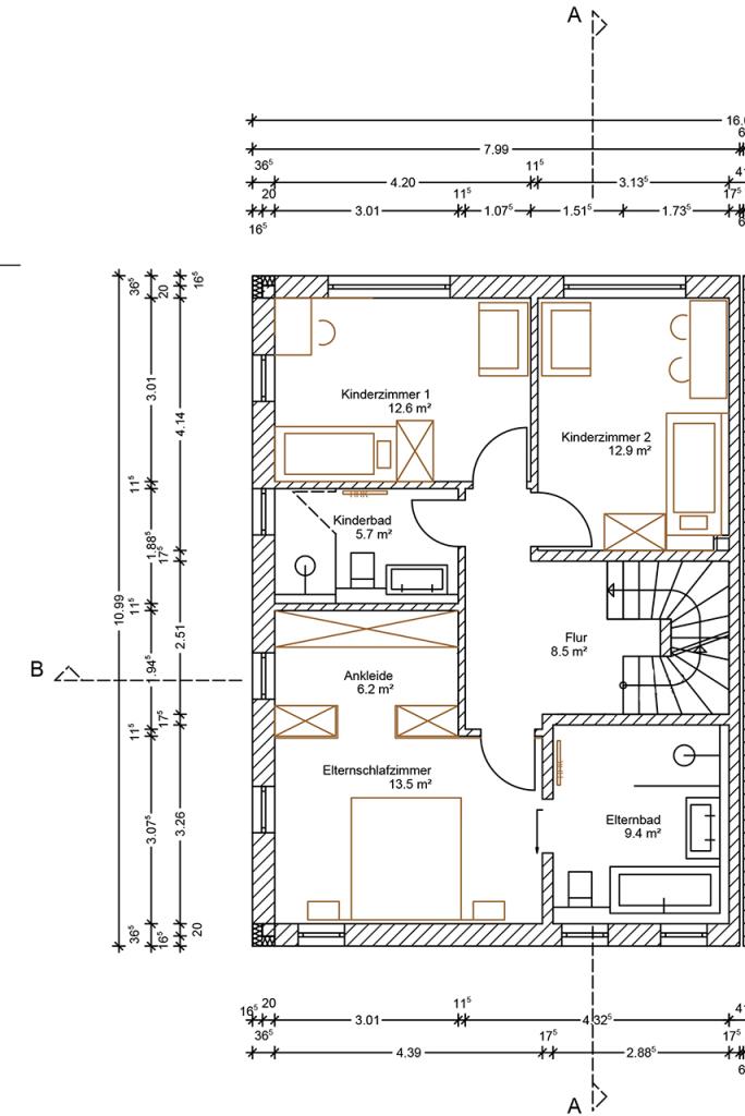
Obergeschoss
In dieser Etage befinden sich ein Elternschlafzimmer mit Ankleidebereich und angrenzendem Badezimmer, welches über eine Wanne und eine Dusche verfügt, zwei Kinderzimmer mit je ca. 13 m² sowie ein weiteres Duschbad.
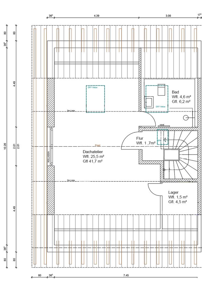
Dachgeschoss
Im Dachgeschoss befindet sich ein weiterer Raum mit einer Grundfläche von ca. 42 m², an welchen ein Badezimmer mit Dusche und ein Lager- bzw. Abstellraum angrenzen.
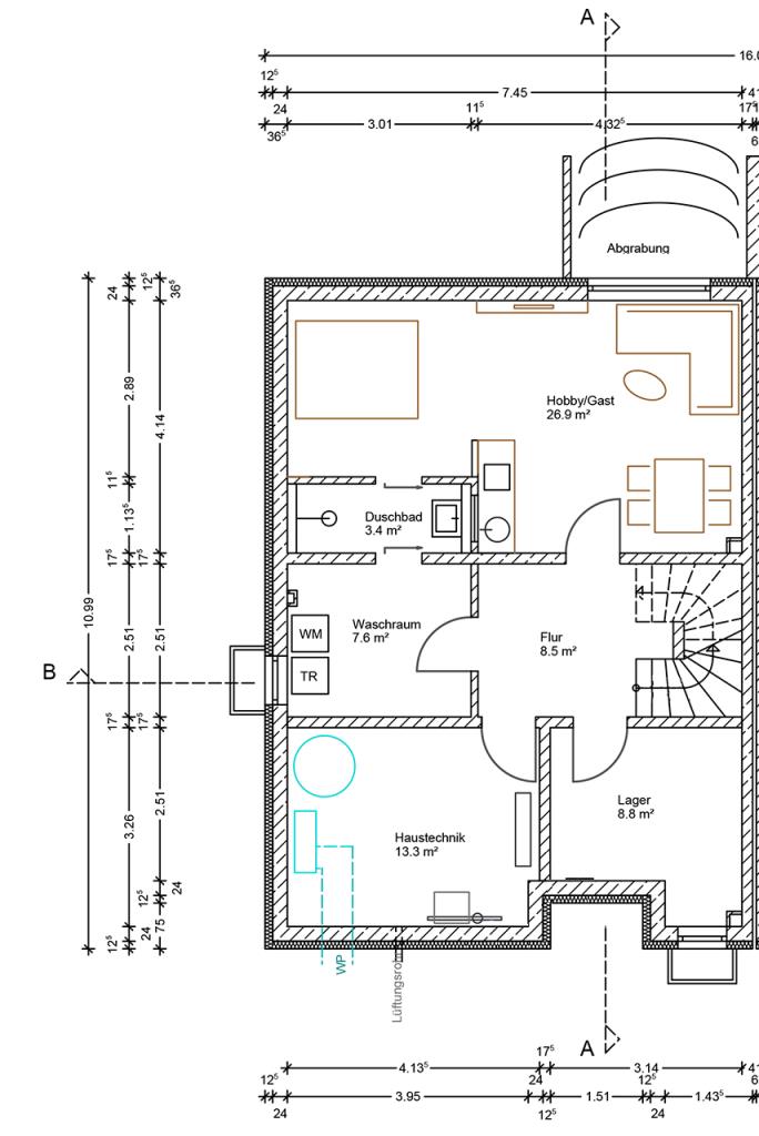
Untergeschoss
Hier findet sich ein Waschraum mit Anschlüssen für Trockner und Waschmaschine, ein Keller- bzw. Lagerraum, ein Haustechnikraum und ein großzügiger Hobbyraum inkl. Duschbad, welcher sich auch zur Nutzung als Gästebereich anbietet.
- Parkett EG: Massivholz-Eiche-Fischgrät
- Parkett KG, OG, DG: Eiche-Dielen
- Fliesen (Feinsteinzeug) hellgrau
- Fußbodenheizung
- Lüftungsanlage
- großzügiger Hobbyraum – Gästebereich
- hochwertige und voll ausgestattete Einbauküche
- Luft-Wasser-Wärmepumpe – elektrisch betrieben
- Photovoltaikanlage
- Einzelgarage und Außenstellplatz
Oberhaching liegt im idyllischen Süden des Landkreises München, eingebettet in eine Gegend, die den Charme eines ruhigen Wohnviertels mit der Nähe zur Natur und zugleich eine sehr gute Anbindung an die Stadt München vereint. Die Gemeinde Oberhaching ist für ihre hohe Lebensqualität, ihre naturnahe Lage sowie die Mischung aus Tradition und Moderne bekannt. Durch die gute Infrastruktur und die zahlreichen Freizeitangebote wird der Vorort besonders von Familien, Berufspendlern und naturverbundenen Menschen geschätzt.
Die Nähe zur S-Bahn-Station Furth, welche fußläufig von der Immobilie erreichbar ist, sorgt für eine reibungslose Anbindung an die Münchner Innenstadt. Die S-Bahn-Linie S3 bringt Sie in etwa 20 Minuten direkt zum Marienplatz, was die Lage besonders attraktiv für Berufspendler macht, die in der Stadt arbeiten, aber die Vorzüge eines naturnahen Lebensstils genießen möchten. Zudem sind die Autobahnen A995 und A8 nur wenige Autominuten entfernt und ermöglichen schnelle Verbindungen sowohl zum Münchner Mittleren Ring als auch zu beliebten Ausflugszielen in den bayerischen Alpen oder zu den Seen im Umland, wie dem Starnberger See und dem Tegernsee.
Die unmittelbare Umgebung ist geprägt von gepflegten Einfamilienhäusern und Doppelhaushälften. Die verkehrsberuhigten Straßen und großzügigen Grünflächen machen das Wohngebiet auch für Kinder sicher und bieten Raum für Spaziergänge und Erholung im Freien. Im Ort befinden sich Kindergärten, Schulen und Sportvereine, wodurch das Viertel eine ideale Wohnlage für Familien darstellt. Es gibt auch zahlreiche Spielplätze und Grünanlagen, die Familien ein zusätzliches Plus an Freizeitmöglichkeiten bieten.
Oberhaching bietet zudem ein reichhaltiges Kultur- und Vereinsleben. Verschiedene Vereine und Veranstaltungen fördern ein starkes Gemeinschaftsgefühl und bieten Einwohnern aller Altersgruppen die Möglichkeit zur aktiven Mitgestaltung und Vernetzung. Darüber hinaus befinden sich Geschäfte des täglichen Bedarfs, Supermärkte und ein Wochenmarkt in der Nähe, sodass die Anwohner viele Besorgungen bequem vor Ort erledigen können.
Für Naturliebhaber bietet die Lage direkten Zugang zu zahlreichen Wander- und Radwegen im nahegelegenen Perlacher Forst und im Isartal, wo man unberührte Natur und idyllische Ruhe genießen kann. In der Umgebung gibt es zudem beliebte Naherholungsgebiete wie das Mangfallgebirge, das im Sommer zum Wandern und im Winter zum Skifahren einlädt, und die malerischen bayerischen Seen, die nur eine kurze Autofahrt entfernt sind.
Adresse
82041 Oberhaching
Die vollständige Adresse der
Immobilie erhalten Sie auf Anfrage.
Ansprechpartner
Alina Seiz
Tel.: 089 444 55 66 - 14
Fax.: 089 444 55 66 - 10
Hubertusplatz 1
82041 Deisenhofen
