Das im grünen und frei von Lasten (kein Altbestand) liegende Grundstück befindet sich am südlichen Ortsrand von Aufhofen. Die Nachbarschaft ist geprägt von vielen Grünflächen, Wäldern, Bauerhöfen, Einfamilien- sowie Doppelhäusern.
Das gesamte Grundstück ist real geteilt und die Grundstücksgröße für das Einfamilienhaus beträgt ca. 408,8 m².
Zudem gibt es eine Zufahrtsfläche, welche ca. 113,6 m² aufweist. Dem Einfamilienhausgrundstück werden von der Zufahrt 1/2 Miteigentumsanteile / MEA zugewiesen – siehe “LAGEPLAN – AUFTEILUNG GRUNDSTÜCKE”.
Für das Grundstück wurde bereits eine Baugenehmigung für die Bebauung mit einem Einfamilienhaus erteilt. Somit können Sie mit dem Bau sofort beginnen. Die Entwurfsplanung wurde von der renommierten und deutschlandweit bekannten Fertighausfirma “Hanse Haus” entworfen (https://www.hanse-haus.de). Bei weiterem Interesse zur genauen Kostenkalkulation des Fertighauses stehen wir Ihnen sehr gerne zur Verfügung und stellen bei Wunsch auch den direkten Kontakt zu dem Ansprechpartner der Firma Hanse Haus her.
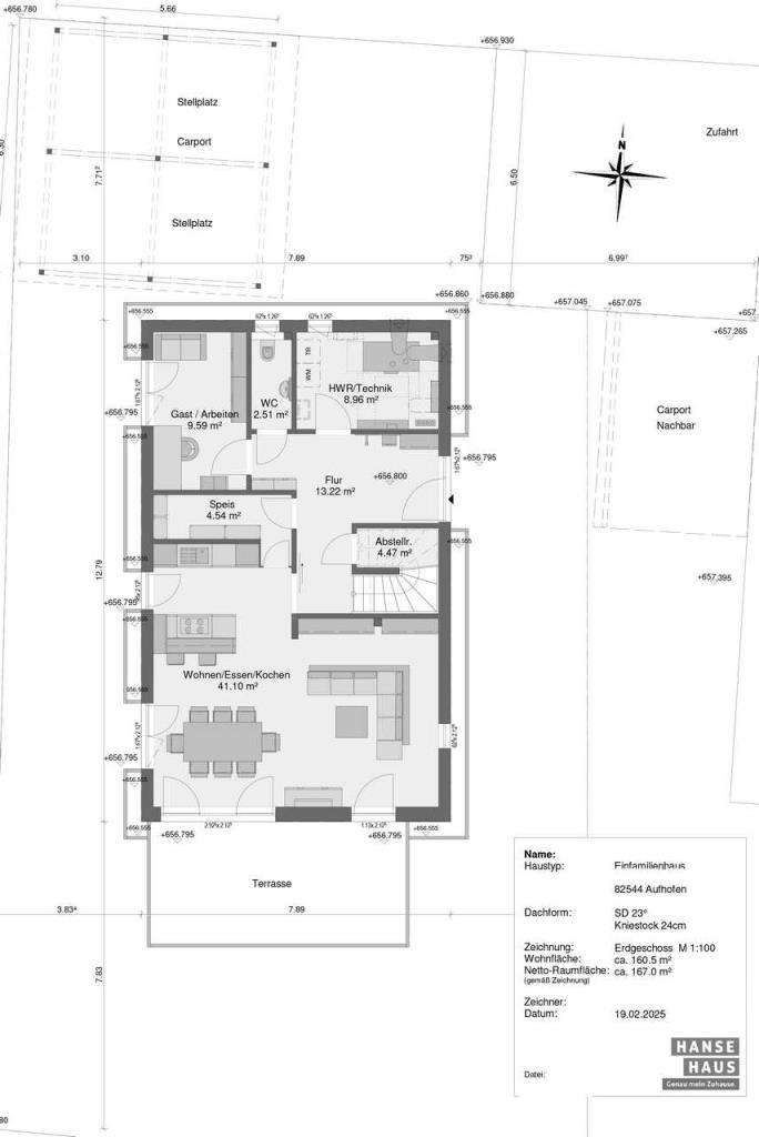
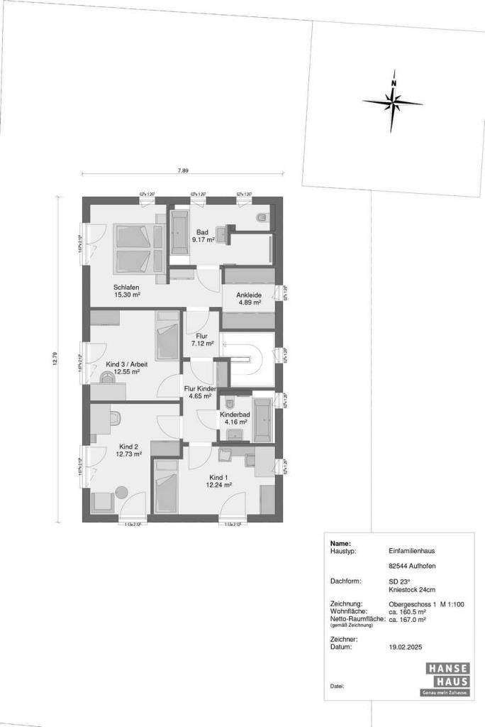
Weitere Detailinformationen zu der möglichen Wohnfläche sowie den Grundrissgestaltungsvorschlägen des Einfamilienhauses können Sie der Eckdaten-Tabelle und den Beispielgrundrissen auf den nächsten Seiten entnehmen.
- Highlights
- schöne Lage an der Grenze zum Landkreis München
- kleiner überschaubarer Ort
- idyllische Ruhe & grüne Umgebung
- _______________________________________________________________
- optimal geschnitten und ideal für Familien geeignet
- flexible Grundrissgestaltung
- Galerieeinbau möglich
- _______________________________________________________________
- frei von Lasten (kein Altbestand)
- _______________________________________________________________
- Baugenehmigung für ein Einfamilienhaus bereits vorhanden
- _______________________________________________________________
- Ausrichtung nach Südwesten
- _______________________________________________________________
- kleiner Weiher im Ort
- Gasthof & Hotel “Jägerwirt”
- Metzgerei “Mayrs Oxenhof” mit Fokus auf das Tierwohl
Der kleine überschaubare Ort Aufhofen mit seinen ca. 190 Einwohnern gehört zusammen mit den Dörfern Attenham, Deining, Dettenhausen, Egling, Ergertshausen, Endlhausen, Eulenschwang, Hornstein, Neufahrn, Moosham, Reichertshausen und Thanning zur Gemeinde Egling. Diese Gemeinde liegt im Norden des Landkreises Bad Tölz-Wolfratshausen an der Grenze zum Landkreis München.
Aufhofen ist durch die schöne ländliche Atmosphäre sehr beliebt, die sich durch viele Wälder, Wiesen, kleine Seen und dem Landschaftsschutzgebiet “Eglinger Filze-Mooshamer Weiher” auszeichnet. Auch der Aufhofener Weiher, welcher direkt an der nördlichen Ortsgrenze liegt, lädt im Sommer zum baden und erholen oder aber auch im Winter zum Eisstockschießen ein.
Die nächstgrößere Stadt Wolfratshausen mit einer S-Bahnstation (S7 Richtung München) und mit allen Geschäften des täglichen Bedarfs sowie Ärzten, Schulen, Kindergärten und anderen Einrichtungen liegt nur ca. 10 Fahrminuten entfernt.
Das Hotel und der Gasthof “Jägerwirt” in Aufhofen genießt im ländlichen Raum zudem einen guten Ruf und bietet eine sehr gute Bayrische Küche.
Das herrliche wald- und wiesenreiche Umland werden Sie sehr rasch kennen- und lieben lernen: ein wahres Erholungs- und Freizeitgebiet für Wanderer und Jogger, Radler, Reiter und Naturliebhaber. Mit dem Starnberger See im Westen und der Alpenkulisse im Süden kann dieses naturreiche Land für Sie ein schöner Heimatort werden.
Der perfekte Ort für ein Leben auf dem Land ohne Verzicht auf die Nähe zur Münchner Innenstadt.
Adresse
82544 Egling / Aufhofen
Die vollständige Adresse der
Immobilie erhalten Sie auf Anfrage.
Ansprechpartner
Maximilian Ritter
Tel.: 089 444 55 66 - 13
Fax.: 089 444 55 66 - 10
Hubertusplatz 1
82041 Deisenhofen
