Hier zum Verkauf steht ein vollumfänglich saniertes und modernisiertes Wohn- und Geschäftshaus, welches sich in einer äußerst beliebten und idealen Lage befindet und vielseitige Nutzungsmöglichkeiten bietet.
Die Immobilie ist sowohl für gewerbliche Zwecke als auch für Wohnzwecke bestens geeignet und befindet sich in einem hervorragenden Zustand.
Das Objekt gliedert sich wie folgt:
Untergeschoss:
Der großzügige Keller bietet reichlich Lagerfläche und eignet sich perfekt für die Unterbringung von Waren oder die Lagerung von Bürobedarf. Mit ausreichend Stauraum und einer praktischen Anordnung ist dieser Bereich ein wertvolles Asset für jedes Unternehmen.
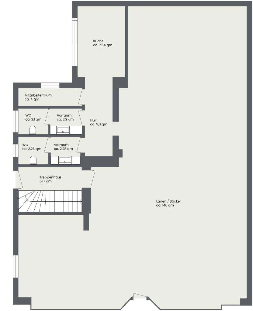
Erdgeschoss:
Im diesem Bereich befindet sich eine geräumige Ladeneinheit, welche seit 2009 an eine bekannte und gut frequentierte Bäckerei vermietet ist. Große Schaufensterfronten sorgen für viel Tageslicht und ermöglichen eine attraktive Präsentation des Geschäfts.
1. Obergeschoss:
Das 1.OG wurde vollumfänglich modernisiert und kann durch die großzügige und durchdachte Raumaufteilung auf insgesamt 155 m² ideal als Wohnraum aber auch als Bürofläche genutzt werden. Derzeit wird das 1.OG als Wohnraum vermietet.
Dachgeschoss:
Das Dachgeschoss wurde vollständig zu einem komfortablen Wohnbereich ausgebaut. Die stilvolle Gestaltung und der hochwertige Ausbau mit modernem Badezimmer und vollausgestatteter Küche schaffen eine angenehme Wohnatmosphäre. Weiterhin lädt das große und helle Schlafzimmer mit Balkon und der große Wohn- und Essbereich zum Entspannen und Wohlfühlen ein. Zudem bietet die Wohnung ebenfalls ein Gäste-/Arbeitszimmer und eine Abstellnische.
BAULICHE MERKMALE / SANIERUNG
konventionelle Ziegelbauweise
Holzpfettendachstuhl
Fundament aus Stahlbeton
Decken aus Holz und Stahlbeton
aufwendige und umfängliche Sanierungsarbeiten im Jahr 2022/23
Dacherneuerung inklusive Verbesserung der Wärmedämmung
Modernisierung der Außengestaltung u.a. neuer Fassadenputz bzw. Verschalung, Balkongeländer, Rollläden, Regenrinnen und Fallrohre usw.
Modernisierung der Fenster im OG und DG (Fenster im EG wurden neu beschichtet)
Modernisierung der Leitungssysteme (Heizung, Wasser, Elektro, Abwasser)
Modernisierung der Heizanlage (Anschluss an die Geothermie)
Modernisierung des Innenausbaus u.a. Decken, Fußböden, Bäder usw.
Wesentliche Änderung und Verbesserung der Grundrissgestaltung
Die Gemeinde Oberhaching (mit ihren Ortsteilen Oberhaching, Deisenhofen und Furth) liegt im Münchner Süden und hat sich aufgrund der exzellenten und nahen Verkehrsanbindung nach München sowie der ruhigen dörflichen Lage zu einem äußerst beliebten Wohnort etabliert. Auch liegt Oberhaching mit einem Gewerbesteuerhebesatz von 250% in einem attraktiven Bereich und lockt somit eine Vielzahl erfolgreicher Unternehmen an.
Im Herzen von Deisenhofen liegt dieses Wohn- und Geschäftshaus. Von hieraus ist alles fußläufig zu erreichen und die S-Bahn-Haltestelle Deisenhofen liegt weniger als 10 Gehminuten entfernt.
Die Infrastruktur ist hervorragend:
In Oberhaching/Deisenhofen sind jegliche Schulformen vorhanden, welche alle in Fuß- und Fahrradnähe zu erreichen sind. Seien es zahlreiche KiTas und Kindergärten, zwei Grundschulen, eine in naher Zukunft neu erbaute Realschule und FOS wie auch das Oberhachinger Gymnasium mit sprachlichem sowie naturwissenschaftlich-technologischem Zweig. Für die Schüler der Munich International School oder der Pater-Rupert-Meier-Schulen verkehren Schulbusse.
Alle Geschäfte des täglichen Bedarfs, kleine Cafés und feine Restaurants findet man hier neben Feinkostläden oder anderen ortsüblichen Einzelhandelsschäften. Eine ausgezeichnete medizinische Versorgung durch Ärzte, Zahnärzte und Apotheken tragen zur hohen Lebensqualität von Oberhaching bei.
Von der S-Bahnstation Deisenhofen (S3) sind es ca. 20 Minuten in die Münchner Innenstadt. Weiterhin hält in Deisenhofen die Regionalbahn R58 (direkte Verbindung mit Rosenheim; hält auch in Holzkirchen, Kreuzstraße, Westerham, Bruckmühl, Heufeldmühle, Heufeld, Bad Aibling, Bad Aibling Kurpark und Kolbermoor. Fahrten zum Münchner Hauptbahnhof u.a. über Solln und Harras werden mit der RB58 während den Hauptverkehrszeiten ca. zweimal pro Stunde angeboten). Die Autobahn ist weit genug weg, um die Ruhe nicht zu stören, aber nahe genug, um schnell Richtung München oder in die Berge zu kommen.
Auch das Freizeitangebot lässt nichts zu wünschen übrig. Beinahe unendlich sind die Fahrrad- und Wanderwege. Ob radeln, joggen oder Nordic Walking, Sie kommen aus der Tür und können gleich loslegen.
Das aus natürlichen Quellen gespeiste Naturbad – 5 Autominuten vom Objekt entfernt – bietet im Sommer die passende Erfrischung. Weiterhin kann man im Sommer auch zum Deininger Weiher, der mit dem Fahrrad oder Auto leicht zu erreichen ist, zum Baden gehen und im Winter lädt der See zum Eisstockschießen ein. Der Grünwalder Forst ist eine der großen Frischluftschneisen für München und bietet mit dem Walderlebniszentrum Adrenalin im Kletterpark. Reiten in den umliegenden kleinen Dörfern, Fußball, Tennis- und Squashclubs sowie die Golf Range Brunnthal und der Münchener Golf Club in Straßlach werden im nahen Umkreis angeboten.
Adresse
82041 Deisenhofen
Die vollständige Adresse der
Immobilie erhalten Sie auf Anfrage.
Ansprechpartner
Maximilian Ritter
Tel.: 089 444 55 66 - 13
Fax.: 089 444 55 66 - 10
Hubertusplatz 1
82041 Deisenhofen
